будинок продається , Дунакесі

Головна сторінка » будинок продається , Дунакесі » будинок продається , Дунакесі

169 900 000 Ft

€465 594
Дані особи, яка дає оголошення

Casa Futura Kft.

Написати повідомлення
Повідомлення має містити не менше 10 символів.
Описання

Перекладений текст

Оригінальний текст
Prémium minőségű új építésű ikerház Dunakeszi legszebb részén, a Duna közelében! A modern hőszivattyús rendszer mellett kiemelkedő műszaki tartalom: beépített redőnyök, választható hideg-meleg burkolatok, exkluzív szaniterek, igényes beltéri ajtók és háromrétegű külső nyílászárók, hogy otthonod minden részlete tökéletes legyen.

Az építtető kivitelező cég több éves szakmai tapasztalattal és helyismerettel teremti meg a lehetőséget az új otthonok vételére Dunakeszi. Egy ház kivitelezésénél talán még fontosabb az elhelyezkedés, ezért nagyon gondosan választják meg azt a telket, amelyre elkezdenek építkezni.

A hőszivattyús fűtés és a kiemelt műszaki tartalom mellett a ház külső hőszigetelése is prémium minőségű, így az ingatlan A+ energetikai besorolású. Ennek köszönhetően a fenntartási költség minimális, miközben a kényelem maximális.

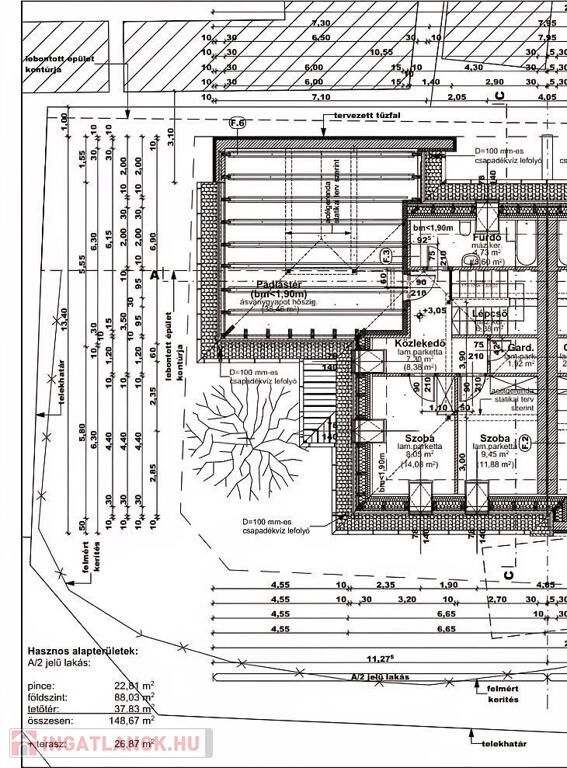
A ház alaprajzát, gondosan kellő odafigyeléssel rajzolták meg, hogy a megépítés után, nagy terek, és kihasználható szobák legyenek. A ház alatt garázs és pince lesz kialakítva.

Ez a ház nemcsak lakás – ez életstílus! Ne maradj le róla!

Bővebb tájékoztatásért, referenciákért, és a terület körbejárásához keressen minket telefonon vagy üzenetben.

Amennyiben a vásárláshoz meglévő ingatlanát kellene eladni, és vagy hitelt tervez akkor irodáink készséggel segítenek a legjobb megoldásokat megtalálni.

дані будинок

149 Квадратні метри

347 Квадратні метри

Будується

Приватний будинок

Не вказано

Інше

Не вказано

Не вказано!

Не вказано!

Не вказано

1 рівень

Не вказано

Фотографії