квартира продається , Ґйор

Головна сторінка » квартира продається , Ґйор » квартира продається , Ґйор

47 350 000 Ft

€124 875
Дані особи, яка дає оголошення

Balogh Ádám

Написати повідомлення
Повідомлення має містити не менше 10 символів.
Описання

Перекладений текст

Оригінальний текст
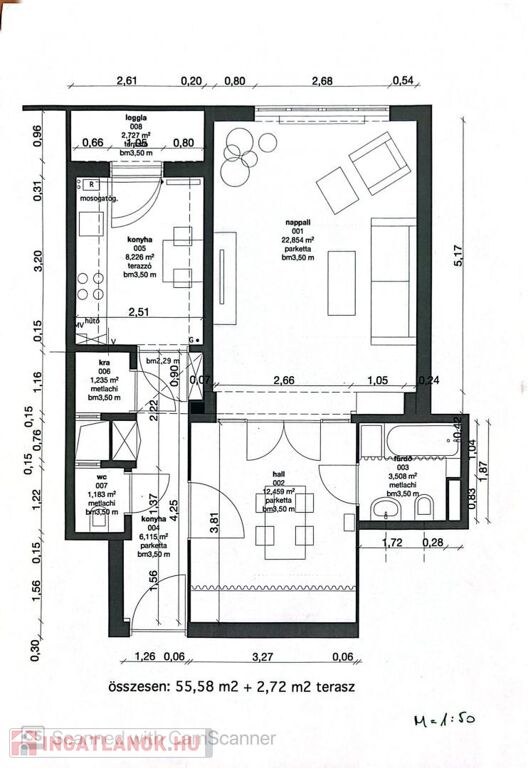
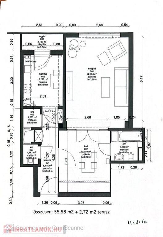
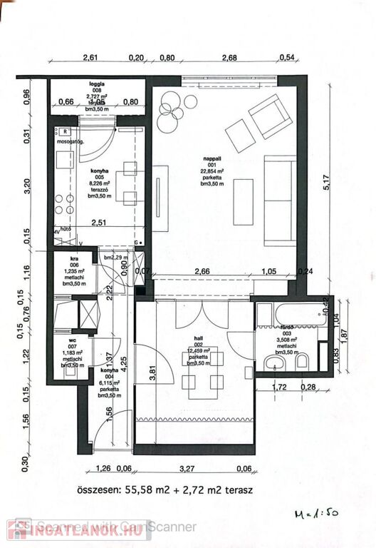
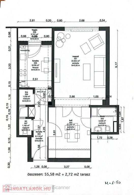
Győr-Belvárosának rendkívül kedvelt részén, Baross úttól, Széchenyi tértől pár perces sétatávolságra, a Munkácsy Mihály úton, rendezett, zárt belső udvarral, kerttel rendelkező, hangulatos, liftes társasház 1. emeletén, konyha – étkező + nappali + 1 hálószobás, továbbá különálló fürdőszobával, különálló WC-vel, különálló kamrával, 2,73 m2-es ERKÉLLYEL felszerelt, 55 m2 hasznos alapterületű, alacsony rezsijű téglalakás, saját 3,4 m2-es TÁROLÓVAL, Zsinagógára való rálátással eladó.

Ár: 47.350.000 Ft.
Érd.: +36-20/573-76-77

A lakás felújítandó állapotú, teljes korszerűsítést igényel!

дані квартира

1 поверх

Не вказано

Cirkо

Потребує ремонту

Не вказано

Не вказано

56 Квадратні метри

Не вказано

Не вказано

Не вказано

Не вказано