квартира продається , Печ

Головна сторінка » квартира продається , Печ » квартира продається , Печ

109 900 000 Ft

€287 802
Дані особи, яка дає оголошення

Csendes Zalán

Написати повідомлення
Повідомлення має містити не менше 10 символів.
Описання

Перекладений текст

Оригінальний текст
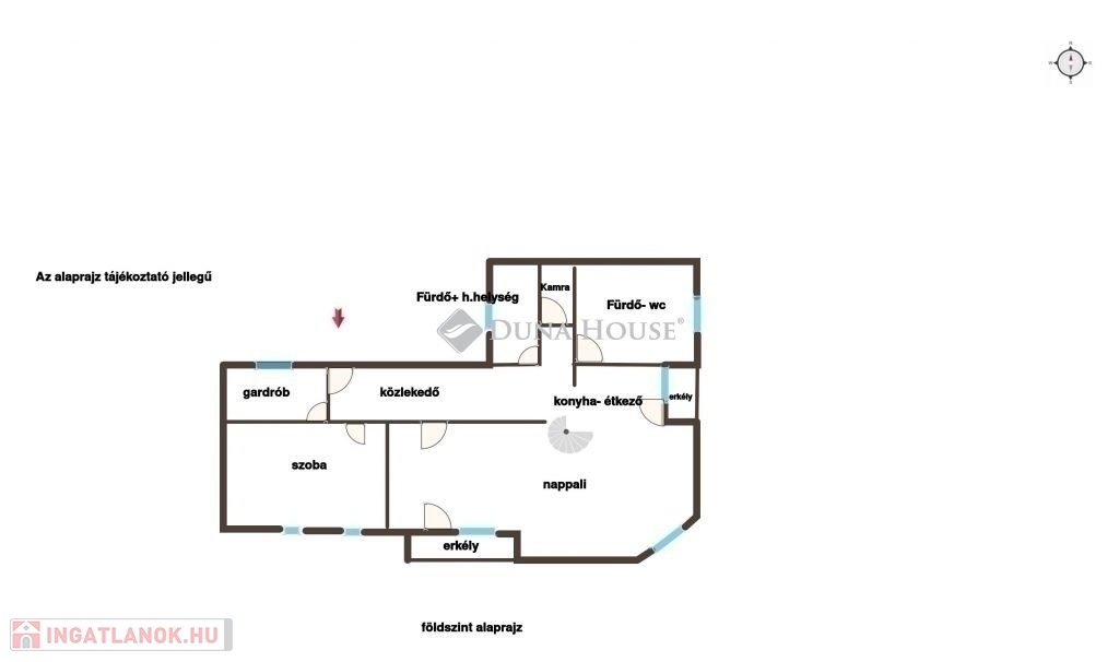
Pécs szívében, a Mária utcában kínálunk megvételre egy 138 m²-es, földszinti, tágas elrendezésű, 3 külön nyíló hálószobás + nappalis lakást közvetlen kertkapcsolattal.
Az ingatlan igény szerint kocsibeállóval is megvásárolható.

--Főbb jellemzők:

- Nettó alapterület: 138 m²
- Földszinti elhelyezkedés,
- közvetlen kertkapcsolattal
- 3 külön nyíló hálószoba + nappali
- Tágas fürdőszoba káddal és zuhanyzóval
- Külön vendég-WC
- Klímaberendezés
- Több tárolóhelyiség a lakás szintjén és az alagsorban
- Gardrób

Csendes, belvárosi elhelyezkedés A lakáshoz külön megvásárolható teremgarázs-beálló tartozik a szemközti társasházban, 7.000.000 Ft áron.

Kinek ajánljuk? Ideális nagyobb családoknak, belvárost kedvelőknek, vagy akár irodai célra is, mivel az elhelyezkedés és a tágas terek sokféle hasznosítást lehetővé tesznek.

További információért vagy megtekintésért keressen bizalommal!
Érdeklődjön akár hétvégén/ünnepek alatt is!
Csendes Zalán: 06304710917

Referencia szám: LK053503

дані квартира

3 поверх

Цегла

Cirkо

Відмінний

Не вказано

21-50 років

102 Квадратні метри

Не вказано

Не вказано

Не вказано

Не вказано

Мапа