будинок продається , Ґеделле

Головна сторінка » будинок продається , Ґеделле » будинок продається , Ґеделле

115 000 000 Ft

€301 157
Дані особи, яка дає оголошення

Horváth Péter

Написати повідомлення
Повідомлення має містити не менше 10 символів.
Описання

Перекладений текст

Оригінальний текст
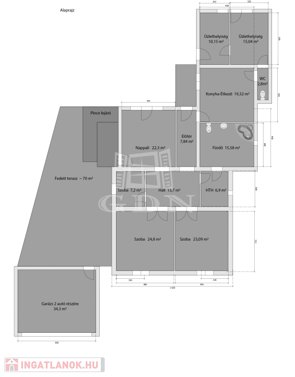
Gödöllőn 548 m2-es telken a Szilágyi Erzsébet utca és a Hunyadi János utca között, két utcafronttal, nettó 168,72m2-es + 34,3m2-es kétautós garázzsal, 13,5m2-es pincével és 70 m2-es fedett terasszal rendelkező családi ház eladó!

A 2004-ben épült és folyamatosan modernizált ingatlanban a Hunyadi János utca felőli utcafronti bejárattal egy 35 m2-es üzlethelyiség található. A homlokzati falak 30-as és 38-as tégla falazattal épültek, melyeket 10cm-es EPS dryvit szigeteléssel láttak el. A külső nyílászárók műanyag thermó üvegekkel szereltek. A tetőt zsindely fedi.

A fűtésről kombi gázkazán gondoskodik.

A parkosított kertet öntözőrendszer locsolja helyettünk. A megközelítőleg 70m2-es fedett terasz kiválló helyszíne a családi összejöveteleknek és a pihenésnek. Az itt található jacuzzi is a vételár részét képezi.

Parkolni a Sziláégyi Erzsébet utcáról elektromos garázsajtón megközelíthető 2 autó tárolására kialakított garázsban tudunk.

A villamos áram terhelhetőseége 1x32A.

Az üzlethelyiség gipszakrtonnal lett elválasztva, hogy akár 2 üzletet is üzemeltethessünk. A könnyedén elbontható válaszfallal 35m2-es helyiséget tudunk kialakítani.

Tárolásra a nappali alatt kialakított 13,5m2-es pince kiváló lehetőséget ad.

Készpénzes vevők jelentkezését várjuk.

Amennyiben hirdetésem felkeltette az érdeklődését vagy egyéb információra van szüksége hívjon bizalommal!

дані будинок

169 Квадратні метри

548 Квадратні метри

Відремонтований

Приватний будинок

Цегла

Cirkо

Газ

Повний комфорт

21-50 років

Не вказано

Одноповерховий

Не вказано

Мапа