будинок продається , Шіофок

Головна сторінка » будинок продається , Шіофок » будинок продається , Шіофок

147 000 000 Ft

€411 972
Дані особи, яка дає оголошення

Szűcs Adrienn

Написати повідомлення
Повідомлення має містити не менше 10 символів.
Описання

Перекладений текст

Оригінальний текст
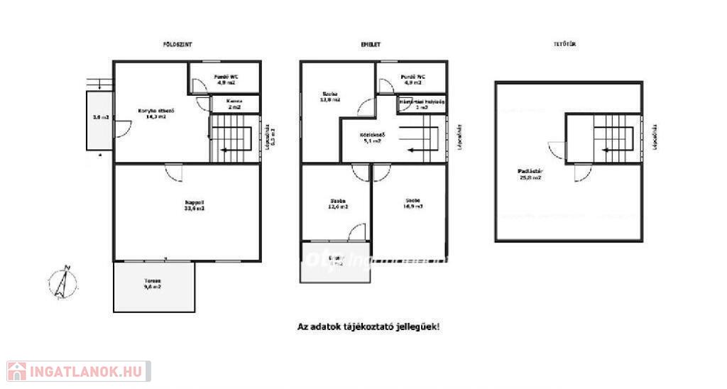
Siófok Ezüstpartján, a Balatontól mindössze 140 méterre felújított, kétszintes családi ház és különálló melléképület eladó egyben és külön is.

Siófok közkedvelt Újhely városrészében, a szabad strandtól csupán 2 perc sétára kínálunk megvételre egy 117 nm-s, kétszintes családi házat, valamint egy különálló, 25 nm-s, teljes értékű melléképületet.

Főépület jellemzői:

Új, korszerű gázkazán biztosítja a fűtést.

Földszinti, világos nappali hangulatos terasszal.

Az emeleten 3 kényelmes hálószoba.

A tetőtérben további beépítési lehetőség.

Friss energetikai korszerűsítés.

Új, hőszigetelt nyílászárók.

Megújult, modern vizesblokkok, új burkolatokkal és szaniterekkel

Felújított, hőszigetelt homlokzat.

A földszinti beépített konyhabútor a vételár részét képezi.

Melléképület:

A különálló, egyszintes épület 25 nm-s lakóteret kínál, két fedett terasszal.
Hőszigetelt, műanyag nyílászáróinak és kialakításának köszönhetően vendégháznak, irodának vagy kiadható apartmannak is kiváló lehetőség.

Telek és parkolás:

Összesen 727 nm-s, gondozott telek. (fő ház 314 nm, kis ház 269 nm, egyéb 144 nm)

Parkolás a zárt udvarban vagy a ház előtti ingyenes közterületen.

Kiváló elhelyezkedés, felújított állapot, többfunkciós melléképület tökéletes nyaraló, állandó otthon vagy akár befektetés!

Megtekintéshez várom hívását.

Az energetikai tanúsítvány készítése folyamatban van, amint rendelkezésre áll, úgy azzal a hirdetés frissítésre kerül.



Referencia szám: M316307

дані будинок

117 Квадратні метри

583 Квадратні метри

Відмінний

Приватний будинок

Цегла

Cirkо

Газ

Повний комфорт

21-50 років

Не вказано

2 рівня

Не вказано

Мапа
Фотографії