квартира продається , Дебрецен

Головна сторінка » квартира продається , Дебрецен » квартира продається , Дебрецен

140 000 000 Ft

€389 181
Дані особи, яка дає оголошення

Dr. Nagy Erika

Написати повідомлення
Повідомлення має містити не менше 10 символів.
Описання

Перекладений текст

Оригінальний текст
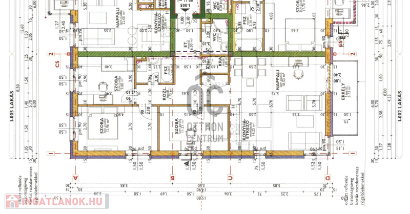
Eladó a Homokkert új építésű lakóparkjában egy új építésű, nappali + 3 szobás, 89 nm-es 1. emeleti tégla építésű lakás egy 12 lakásos társasházban. A tágas és napfényes, nyugati fekvésű nappali-étkező mellett 3 különnyíló szoba, valamint 2 fürdőszoba kerül kialakításra a lakótérben. Az épületen elhelyezett napelemeknek és a modern szigetelésnek köszönhetően a lakás fenntartási költségei rendkívül kedvezőek lesznek. A lakás helységeire látványterv készült. A kellemes hőérzetről a téli időszakban padlófűtés, míg nyáron mennyezethűtés fog gondoskodni. A belső burkolatok, ajtók és a konyhabútor még szabadon választhatóak 2026, februárjáig, így egyéni ízlésének megfelelően tudja kialakítani a belső teret. A lakás előreláthatóan kulcsrakész, beköltözhető állapotba 2026. augusztusában fog kerülni.

A környék infrastruktúrája, biztosítja a kényelmes mindennapokat, mivel iskola, gyógyszertár, orvosi rendelő, McDonalds, Interspar is található egy rövid séta távolságra.
Tökéletes lehetőség fiatalok, családok számára.
Amennyiben felkeltette érdeklődését ez a most épülő ingatlan, kérem, ne habozzon feltenni kérdéseit, hiszen szívesen állok rendelkezésére a részletekkel kapcsolatban.
További kérdésekkel és megtekintési időponttal kapcsolatban várjuk hívását a hét minden napján!

дані квартира

Не вказано

Цегла

Не вказано

Відмінний

Не вказано

Не вказано

89 Квадратні метри

Не вказано

Не вказано

Не вказано

з вулиці

Фотографії