Перекладений текст
                                                    
                            Оригінальний текст
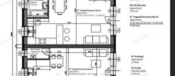
                            Kecskemét vonzáskörzetében Szabó Sándor Telepen, 2026 szeptemberi átadással kínáljuk megvételre, ikerház egyik felét, amely nappali + 2 szobás.
Jellemzői:
	nettó 72 m2
	ikerház belső része
	nappali + 2 szoba
	fürdő és WC külön
	gáz cirkó, padlófűtés
	klíma
	tégla építés
	választható burkolatok
	START hitel igénybe vehető, 10% foglalóval
	gardrób
	terasz 9,4 m2
A tulajdonos kérésére az ingatlan bemutatása egy személyes konzultáció után történik, ahol részletes tájékoztatást kaphat az ingatlan paramétereiről és egyéb kényelmi szolgáltatásairól ! Figyelem az adatlap megbízónktól kapott adatok alapján készült, pontosságáért felelősséget nem tudunk vállalni!
Az iroda legfrissebb, aktuális kínálatát a HOUSE36 saját weboldalán találja!                        
71 Квадратні метри
352 Квадратні метри
Будується
Будинок-близнюк
Цегла
Cirkо
Газ
Не вказано!
Новобудова
Не вказано
Одноповерховий
Не вказано
Шукайте легко в нашій базі даних будинок, квартиру, офіс, гараж, земельну ділянку або будь-яку іншу нерухомість!
Kvartyra.hu член Real Estate Group.
Продається нерухомість в Угорщині - Kvartyra.hu © 2025 Всі права захищені