будинок продається , Дунакесі

Головна сторінка » будинок продається , Дунакесі » будинок продається , Дунакесі

260 000 000 Ft

€683 042
Дані особи, яка дає оголошення

Gombár János

Написати повідомлення
Повідомлення має містити не менше 10 символів.
Описання

Перекладений текст

Оригінальний текст
ÚJ ÉPÍTÉSŰ önálló családi, dupla garázzsal várja lakóit!

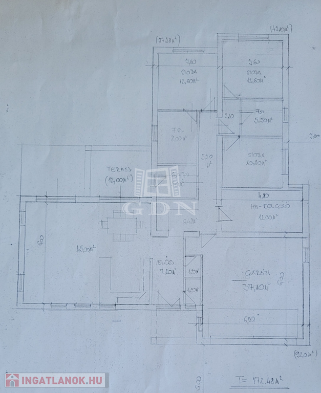
Az egy szintes családi ház 769 nm összközműves telken épül, lakóterülete 172 nm + 26 nm terasz.
Az építkezés még nem kezdődött el.
A képeken látható -, a közelben lévő ingatlan referenciaként bármikor megtekinthető!

A ház helyiségei:
- Amerikai konyhás nappali: 45 nm,
- Négy hálószoba: 12.6, 12.6, 12.0 és 10 nm,
- Háztartási helyiség,
- Két, tágas fürdőszoba (zuhannyal vagy káddal, igény szerint)
- Külön WC,
- Kamra
- Közlekedő
- Gardrób
- Terasz: 26 nm
- DUPLA GARÁZS 37 nm!

MŰSZAKI TARTALOM:
A ház a 15 cm-es homlokzati hőszigeteléssel épül.
A fűtést és a melegvizet, HŐSZIVATTYÚ biztosítja PADLÓFŰTÉSSEL ÉS FALFŰTÉSSEL- FALHŰTÉSSEL, cirkó gázkazánnal kiegészítve.
A meleg nyarak elviselésére + 2 további inverteres klíma áll majd rendelkezésre.
A nyílászárók 3 rétegű üveggel ellátottak, melyek külső színe harmóniában lesz az ANTRACIT, időtálló betoncserép színével, belül pedig fehérek, így minden színvilággal passzolnak.
Minden ablakra szintén antracit színű, minőségi ELEKTROMOS alumínium redőny és szúnyogháló kerül.
Az ablakokat kívül és belül is időtálló kőpárkányok díszítik.

EXTRÁK :
- 7 KW napelem
- Elektromos garázskapu
- Elektromos kertkapu
- Kerti kút szivattyúval, mely ellátja a kert öntözését
- Riasztórendszer
- Eektromos redőny
- Szúnyogháló
- Hőszivattyú / falfűtés / falhűtés / padlófűtés
- Gázkazán
- 2 db inverteres klíma
- Térburkolatos járdák
- Gépkocsi beálló térkővel burkolva
- DUPLA GARÁZS

IGÉNY SZERINT:
- Parkosított kert (öntöző rendszerrel)
- Medence

Az új tulajdonosnak lehetősége van a szaniterek és a burkolatok megválasztására, valamint a belső falak színeit is meghatározhatja.

A környék közlekedése és ellátottsága kiváló!
A közelben található a helyi járat - és a helyközi járat buszmegállója. Közelben az M2 - M0-s autópálya fel - és lehajtója, iskola, sportpálya, óvoda, játszótér, gyógyszertár, TESCO, piac, étterem ... stb.

Hitelre vásárló ügyfeleinknek teljeskörű, ingyenes, bank semleges ügyintézéssel állunk rendelkezésére. Irodánk ügyvédje pedig kedvező díjszabással vállalja az adásvételi szerződés elkészítését.
Amennyiben még el kell adnia ingatlanát, kérem, tiszteljen meg bizalmával és kérje, nagy tapasztalattal rendelkező, az aktuális árakkal tisztában lévő, irodánk ajánlatát.

G.J.

дані будинок

172 Квадратні метри

769 Квадратні метри

Відмінний

Приватний будинок

Цегла

Геотермальне

Не вказано

Повний комфорт

Не вказано!

Не вказано

Одноповерховий

Не вказано

Мапа