квартира продається , Ґйор

Головна сторінка » квартира продається , Ґйор » квартира продається , Ґйор

59 005 750 Ft

€153 274
Дані особи, яка дає оголошення

Neizer Éva

Написати повідомлення
Повідомлення має містити не менше 10 символів.
Описання

Перекладений текст

Оригінальний текст

Győr belvárosától 10 perces autóútra, Szitásdomb II. Lakóparkban 2025 decemberi átadással 25 lakásos társasházban magas minőségi tartalommal épülő lakások eladók.

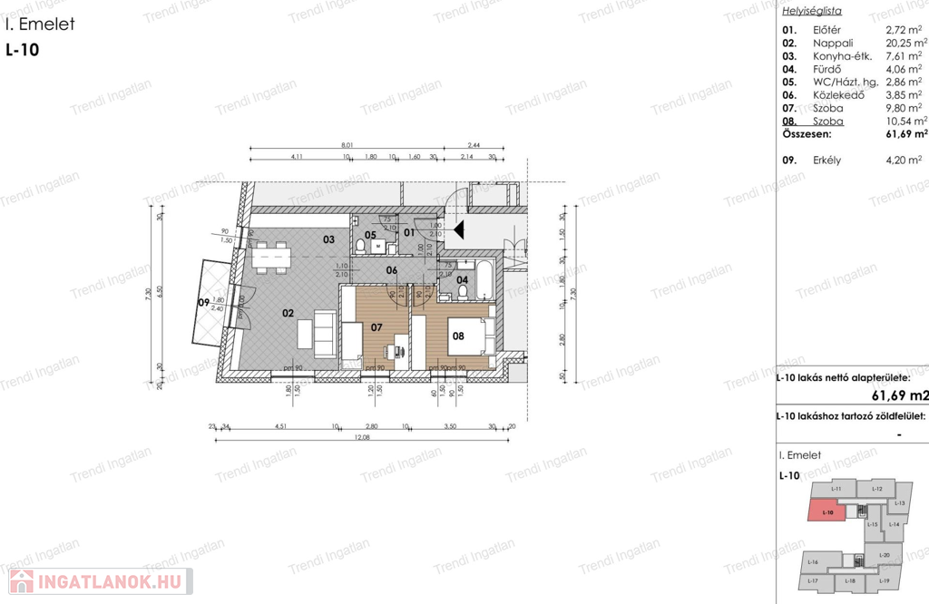
Az 1. emeleten található 61,69 m²-es lakásban amerikai konyhás nappali, 2 szoba, fürdőszoba, háztartási helyiség WC-vel, közlekedő, előtér kerül kialakításra. Nappaliból 4,20 m²-es erkély nyílik.

A lakás fűtéskész ára: 59.005.750 Ft. Kulcsrakész befejezés kérhető.

Gépkocsibeálló ára: 1.000.000 Ft + Áfa/db. A lakáshoz 2 db gépkocsibeállót kell vásárolni.

MŰSZAKI JELLEMZŐK:

A tárasház 30 cm-es falazóelemből, 20 cm-es homlokzati szigeteléssel épül. A műanyag, hang-és hőszigetelt, Internorm nyílászárók kívül antracit színűek. Az ár tartalmazza az alumínium elektromos redőny előkészítését és a redőny dobok beépítését. Az ingatlan hűtése/fűtése hőszivattyúval történik, egyedi hőmennyiségmérővel és hőmérséklet szabályozó termosztáttal, így nincs szükség klímára. Melegvíz előállítás is hőszivattyúval megoldott. A társasház udvaran térkövezett gépkocsibeállók kerülnek kialakításra.

KÖRNYÉK JELLEMZŐI:

Tárasház új kialakítású részen, a Szitásdomb II. Lakóparkban épül. A közelben boltok, pékség, babauszoda, szépségszalon, játszótér található. A környéken új és újszerű családi házak, társasházak épültek/épülnek.  Győr-Belvárosa, az Ipari Park, az AUDI, az autópálya elkerülő könnyen elérhető.

ELŐNYÖK:

Modern, új építésű társasház, ami minőségi anyagokból épül.

Új lakópark, ahol csak új építésű ingatlanok találhatóak.

2025 év végi átadás.

Belváros, az Ipari Park, az autópálya elkerülő könnyen elérhető.

Ha szeretné megtekinteni a helyszínt, vagy bővebb tájékoztatást szeretne kérni, várom hívását akár hétvégén is!

Díjmentes, bankfüggetlen hitelügyintézéssel állunk rendelkezésére.

A hirdetésben feltüntetett képek illusztrációk.

 



 

дані квартира

1 поверх

Цегла

Не вказано

Відмінний

Повний комфорт

Новобудова

62 Квадратні метри

Не вказано

Не вказано

Не вказано

Не вказано

Фотографії