квартира продається , Дебрецен

Головна сторінка » квартира продається , Дебрецен » квартира продається , Дебрецен

77 907 000 Ft

€216 571
Дані особи, яка дає оголошення

Seres Ildikó

Написати повідомлення
Повідомлення має містити не менше 10 символів.
Описання

Перекладений текст

Оригінальний текст
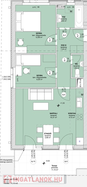
Debrecen dinamikusan fejlõdõ részén a Tócóligetben 57m2-es, magasföldszinti, erkélyes ingatlan, 6 lakásos új építésû társasházban eladó!

Szoba 1: 12,06m2
Szoba 2: 8,26m2
Nappali+Konyha+Étkezõ: 23,97m2
Fürdõ: 3,60m2
WC: 1,62m2
Közlekedõ+Elõtér: 7,24m2
Hasznos alapterület összesen: 56,75m2
Erkély: 11,15m2

A garázs megvásárlása kötelezõ, zárt garázs kialakítására is kínálunk lehetõséget felár esetében.


Mûszaki tartalom:

Nyílászárók:
- Ajtók HPL vagy CPL választható színek, katalógus szerint
- 6-7 légkamrás acélmerevítésû mûanyag tokos ablakok, kívül színezett belül fehér 3 rétegû üveg, kívül alumínium párkány belül mûanyag fehér párkány
- Motoros napháló, mobil rovarhálóval
- Bejárati ajtó 90/212,5 acél szerkezetû sarok tok, lágy ütközéssel, tömör szárny

Burkolatok:
- Hideg burkolat: nettó 6000 Ft/m2
- Meleg burkolat: nettó 6000 Ft/m2
- Háló helyiségek meleg burkolatot kapnak, nappali, közlekedõ, vizes helyiségek hideg burkolatot
(Konyhában munkapult feletti 60 cm sáv, teljes hosszban. Fürdõszoba, toalett, közlekedõ, nappali- konyha teljes burkolását az ár tartalmazza)
-A burkolatokat a vevõ magának választhatja ki, a fent megjelölt árakon. Magasabb áru burkolat kiválasztása esetén, a különbözet a vevõt terheli.


Vizes helyiségek:
- Mofém csaptelepek kerülnek beépítésre
- WC: falsík alatti Geberit WC tartály
- Választható kád vagy zuhany, ami elfér a fürdõben (Ravak, Wellis)
Értékegyeztetéssel bármilyen márka/típus választható!

Konyha:
-A konyhabútort az ár nem tartalmazza, pult feletti csempe illetve a gépesítés elõkészítése benne van az árban.

Fûtés, HMV, szellõzés, hûtés:
-Hajdú hõszivattyú kerül beépítésre, ami a hûtést is biztosítja, a meleg víz ellátásáról Hajdú gázkazán gondoskodik
-Padlófûtés, fürdõszobában törölközõszárító
-Minden lakásnak helyiségenként saját hõmérséklet-szabályzása lesz
-Lakásonként egy klíma beépítését az ár tartalmazza, pl

дані квартира

Наземний поверх

Цегла

Cirkо

Будується

Повний комфорт

Не вказано

57 Квадратні метри

Не вказано

Не вказано

Не вказано

Не вказано

Фотографії