офіс здається, Шалґотар\'ян

Головна сторінка » офіс здається, Шалґотар\'ян » офіс здається, Шалґотар\'ян

260 000 Ft

€710
Дані особи, яка дає оголошення

Tatár Tamás

Написати повідомлення
Повідомлення має містити не менше 10 символів.
Описання

Перекладений текст

Оригінальний текст
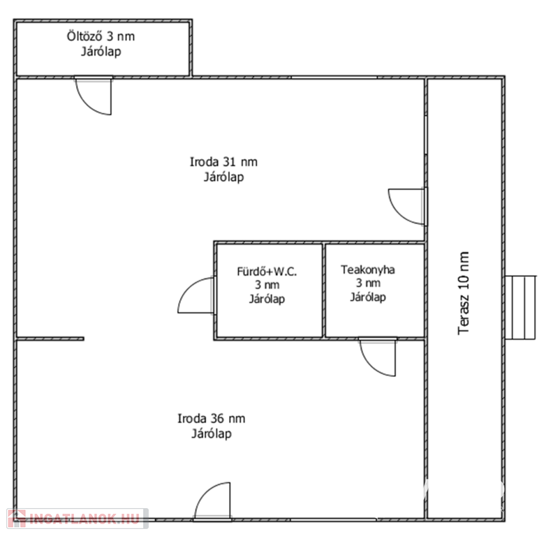
Nógrád megye, Salgótarján (Belváros), utcai bejárattal rendelkező, 76 nm-es, felújított, klimatizált, kamera -és riasztórendszerrel ellátott, korszerű üzlethelyiség hosszú távra kiadó!

Az ingatlan a város forgalmas részén, a Füleki úton található, bármilyen kereskedelmi vagy szolgáltató tevékenység folytatására maximálisan alkalmas lehet.

Az ingatlanban üzlettér, teakonyha, zuhanyzós fürdőszoba és öltöző található.

A bérleti szerződés feltétele 2 havi kaució és 1 havi bérleti díj megfizetése.
(További képekért és információkért kérem hívjon!)

дані офіс

Не вказано

Офисное помещение

76 Квадратні метри

Не вказано

Не вказано

Фотографії