будинок продається , Дебрецен

Головна сторінка » будинок продається , Дебрецен » будинок продається , Дебрецен

160 000 000 Ft

€409 511
Дані особи, яка дає оголошення

Némethné Zsuzsa

Написати повідомлення
Повідомлення має містити не менше 10 символів.
Описання

Перекладений текст

Оригінальний текст
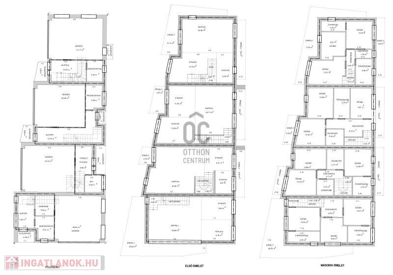
2. lakás Br. 162 nm, 90 nm kertkapcsolattal:

Földszint:
- duplagarázs (34 nm)
- mosókonyha zuhanyzóval (4 nm)
- tároló (9 nm)
- előlépcső (4 nm)

I. Emelet:
- amerikaikonyhás nappali étkezővel (47 nm), melyből kialakítható dolgozószoba
- erkélykapcsolat (3 + 6 nm)

II. Emelet:
- 3 hálószoba (10 - 9 - 10 nm)
- 2 fürdőszoba (5 - 5 nm)
- erkélykapcsolat (3 + 9 nm)
Projekt bemutatása

Debrecen Belvárosához közel, a Széchenyi-kert egyirányú utcájában új építésű, exkluzív otthonok épülnek.
A 4 lakásos ikerházból már 1 lakás eladásra került!
Ezek az Otthonok duplagarázzsal és gépesített, beépített konyhával kerülnek értékesítésre!

Az egyedi kialakítású, napfényes lakások nappali + 3 szobás, 3 fürdőszobás, háromszintesek és kertkapcsolatosak:
földszinten: duplagarázs, mosókonyha zuhanyzóval, gardróbbal/tárolóval
I. emeleten: nappali, étkező - konyha, akár dolgozó/háló kialakítással és erkély vagy teraszkapcsolattal
II. emeleti részen: szülői hálószoba gardróbbal és saját fürdőszobával, valamint 2 hálószoba külön fürdőszobával és erkély vagy teraszkapcsolattal

A magas műszaki tartalmon túl, EXTRA megoldások kerülnek beépítésre:
- külső falak Porotherm 30 cm tégla, 15 cm hőszigeteléssel
- 3 rétegű műanyag nyílászárók
- elektromos redőnyök egyedileg is vezérelhető távirányítással
- 5 db hőszivattyús típusú klíma (hűtő-fűtő)
- gázkazán melegvíz tárolóval (padlófűtés)
- beépített konyhabútor gépesítve (főzőlap,sütő,páraelszívó,hűtő,mosogatógép)
- központi porszívó
- vízlágyító berendezés
- riasztó
- épített kerítés
- beépített led világítások

Minden lakás kertkapcsolatos, melyet kerítés választ el egymástól és a szomszédos telektől.

Átadás: 2025. július

Jöjjön és legyen Ön a következő, aki még választhat és akár azonnal költözhet!

Hitelügyintézés, CSOK +, banki kollégánk teljeskörűen és díjmentesen bonyolítja Önnek irodánkban, de akár otthonában is!

дані будинок

150 Квадратні метри

150 Квадратні метри

Середній

Будинок блокованої забудови

Не вказано

Cirkо

Не вказано

Не вказано!

Не вказано!

Не вказано

Не вказано

Не вказано