будинок продається , Дьюла

Головна сторінка » будинок продається , Дьюла » будинок продається , Дьюла

62 900 000 Ft

€164 720
Дані особи, яка дає оголошення

Dr. Folczné Szentléleki Enikő

Написати повідомлення
Повідомлення має містити не менше 10 символів.
Описання

Перекладений текст

Оригінальний текст
Minden szinten szinte minden!

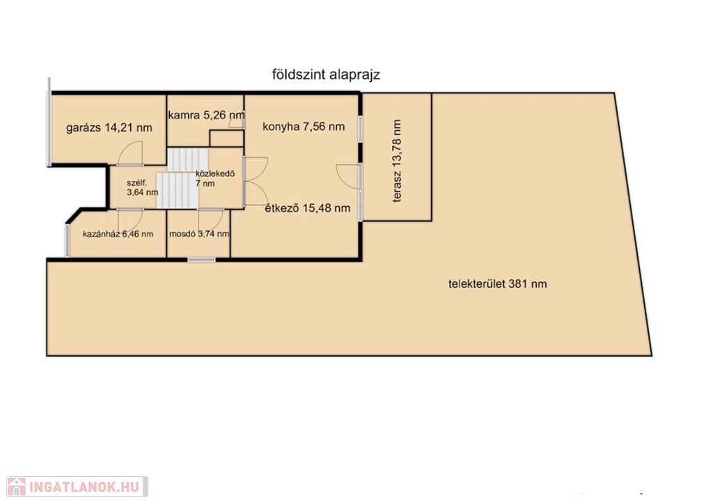
Erre az egyedi elrendezésű házra ez nagyon igaz, hiszen az ingatlanban 2 emelet és 2 félemelet is található, így a szobákban élvezhetjük a csendet és nyugalmat, amíg a nappaliban és az étkezőben zajlik a családi, baráti összejövetel. Az ingatlanban minden helyet kapott, hiszen az étkezővel és kamrával felszerelt konyha mellett 4 szoba, 2 fürdőszoba, külön WC, kazánház, gardrób és garázs is. Ezek mellett lehetőség van a padlástér beépítésére is. A ház alapterülete 148 nm, betonalapra tégla falazattal épült, 2017-ben az ablakok műanyagra lettek cserélve, illetve egy hűtésre és fűtésre is alkalmas klíma lett felszerelve. Az otthon melegéről gázkazánról működtetett padlófűtés gondoskodik minden szinten. A kert alapterülete 381 nm, melyhez egy tágas fedett terasz biztosít kertkapcsolatot, emellett egy szerszámtároló és egy fúrott kút is helyet kapott.
Az ingatlan a belvárostól 5 perces sétára található, de ugyanilyen távolságra van a Várfürdő és a gyulai vár is. A közelben található iskola, óvoda és élelmiszerbolt is.
Tökéletes elhelyezkedésének és egyedi elrendezésének köszönhetően kitűnő választás nagycsaládosoknak, fiataloknak, de akár többgenerációs családigáznak is.
Az ingatlanra CSOK+ igényelhető!
Hívjon mielőbb és tekintse meg! Higgye el nem fog csalódni!
(További képekért és információkért kérem hívjon!)

дані будинок

148 Квадратні метри

381 Квадратні метри

Відремонтований

Будинок-близнюк

Цегла

Cirkо

Не вказано

Не вказано!

Не вказано!

Не вказано

Не вказано

Не вказано