будинок продається , Айка

Головна сторінка » будинок продається , Айка » будинок продається , Айка

75 000 000 Ft

€204 896
Дані особи, яка дає оголошення

Béndek Péter

Написати повідомлення
Повідомлення має містити не менше 10 символів.
Описання

Перекладений текст

Оригінальний текст

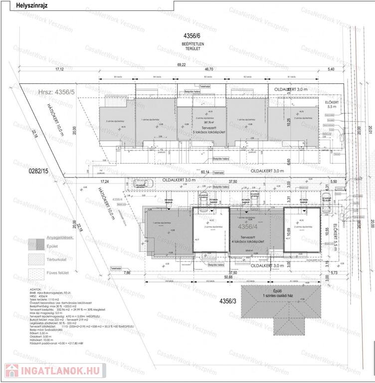
A veszprémi CasaNetWork Ingatlaniroda eladásra kínálja a 2216-ös számú ajkai sorházát!

Az ajkai újépítésű sorház jellemzői:

-98,13 alapterületű

-5,33 m2 terasz

-A gyors ütemben fejlődő városban és környékén rengeteg nagyvállalat és multi cég telepedett meg,és folyamatos a fejlődés.

-A sorházi lakások 5 percre találhatóak a városközponttól gépkocsival.

-A kivitelező cégnek számos referenciája van a környéken,kérésre természetesen megtekinthetők.

-Az épületben hőszivattyúval ellátott rendszer lesz kialakítva,megfelelve a mai kor igényeinek.Ez mellett 5 kamrás műanyag hőhídmentes nyílászárók kerülnek beépítésre.Kerámia burkolat,meleg burkolat(laminált padló)kiválasztása a vevő által.

-Kertkapcsolattal rendelkeznek az ingatlanok.

-A kivitelezés befejezése várhatóan 2025.III. negyed évben lesz.

Amennyiben a 2216-ös számú ajkai új építésű sorház, vagy bármely más ajánlatunkban szereplő telek, családi ház, vagy új építésű lakás, felkeltette érdeklődést, készséggel állok rendelkezésre a megadott telefonszámon.

Vásárolna, de nincs rá keret? Kollégáim díjmentes és bank semleges hitel ügyintézéssel állnak rendelkezésére!

Béndek Péter

ingatlan képviselő

0620 420-8120

           " CasaNetWork-A civilizált ingatlanértékesítés artériája ! "

дані будинок

98 Квадратні метри

120 Квадратні метри

Відмінний

Будинок блокованої забудови

Цегла

Не вказано

Не вказано

Не вказано!

Не вказано!

Не вказано

Не вказано

Не вказано

Фотографії