квартира продається , Дебрецен

Головна сторінка » квартира продається , Дебрецен » квартира продається , Дебрецен

120 890 875 Ft

€336 593
Дані особи, яка дає оголошення

Rácz Zsolt

Написати повідомлення
Повідомлення має містити не менше 10 символів.
Описання

Перекладений текст

Оригінальний текст
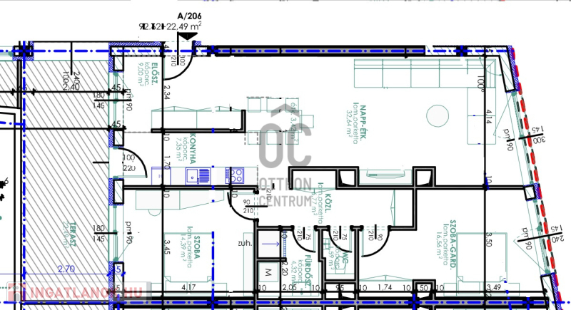
Debrecen abszolút Belvárosában, de mégis csendes övezetben, modern, egyedi megjelenésű, liftes társasház épül a földszinten 4 üzlettel és a -1 szinten teremgarázs parkolókkal. A lakások között vannak földszinti kertkapcsolatosak, és penthouse jellegűek is. A projekt tervezésénél, az elsődleges szempont az otthonos, élhető lakások építése volt. Az épületben helyet kapó lakások mindegyike egyedileg kialakított tágas terekkel, jó funkcionalitással és nagy méretű loggiákkal, teraszokkal rendelkezik. A lakások minőségi anyagok felhasználásával készülnek, a legkorszerűbb 3 rétegű üvegezésű ablakokkal, hőszivattyús klímával ellátottak. A belvárosban található ingatlan pár perc sétára található a Nagytemplomtól, a Piactól és a Bevásárló központoktól. Egyéb információért hívjon bizalommal. Ez a 2. emeleti lakás 92,62 nm-es, nappali-étkező-konyha +2 szobás, 22,49 nm-es terasszal.
Projekt bemutatása

-

дані квартира

Не вказано

Цегла

Центральне з індивідуальним лічильником

Відмінний

Не вказано

Не вказано

93 Квадратні метри

Не вказано

Не вказано

Не вказано

виходить в сад

Фотографії