квартира продається , Шопрон

Головна сторінка » квартира продається , Шопрон » квартира продається , Шопрон

69 000 000 Ft

€188 504
Дані особи, яка дає оголошення

Невідомий продавець

Написати повідомлення
Повідомлення має містити не менше 10 символів.
Описання

Перекладений текст

Оригінальний текст
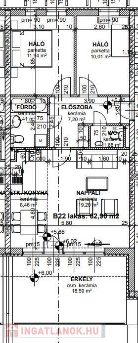
B22Hőszivattyúval és napelemmel működő fűtés- és melegvíz ellátás, mely nem jár költséggel!!!Sopron kertvárosi övezetében, most induló új projekt keretében eladó egy 82 m2 méretű nappali+2 szobás, nagy erkélyes, 2. emeleti lakás.
A társasház kivitelezése jelenleg korai szakaszban tart, ezért a most megvásárolt ingatlannál még lehet élni a kezdeti stádium előnyeivel.Tároló, teremgarázs, garázs és felszíni beálló is vásárolható.Magas szintű technológiai paraméterek, megtérülő befektetés .Hitel ügyintézésben segítséget nyújtunk.CSOK igénybe vehető.
Vásárolna, de most nincs rá  pénzügyi keret? Kolléganőm, Szilágyi Melinda díjmentes, bankfüggetlen, személyre szabott hitel ügyintézéssel áll rendelkezésére.Amennyiben a ........164302847 .............számú, vagy bármely kínálatunkban szereplő ingatlan felkeltette érdeklődését, hívjon a megadott telefonszámon, vagy forduljon a KÖZPONTI irodánkhoz, Sopron, Várkerület 19.  Tel: +36 99 386 607.

дані квартира

2 поверх

Цегла

Не вказано

Добрий

Не вказано

Не вказано

72 Квадратні метри

Не вказано

Не вказано

Не вказано

Не вказано

Фотографії