будинок продається , Zamárdi

Головна сторінка » будинок продається , Zamárdi » будинок продається , Zamárdi

90 000 000 Ft

€245 265
Дані особи, яка дає оголошення

Szűcs Adrienn

Написати повідомлення
Повідомлення має містити не менше 10 символів.
Описання

Перекладений текст

Оригінальний текст
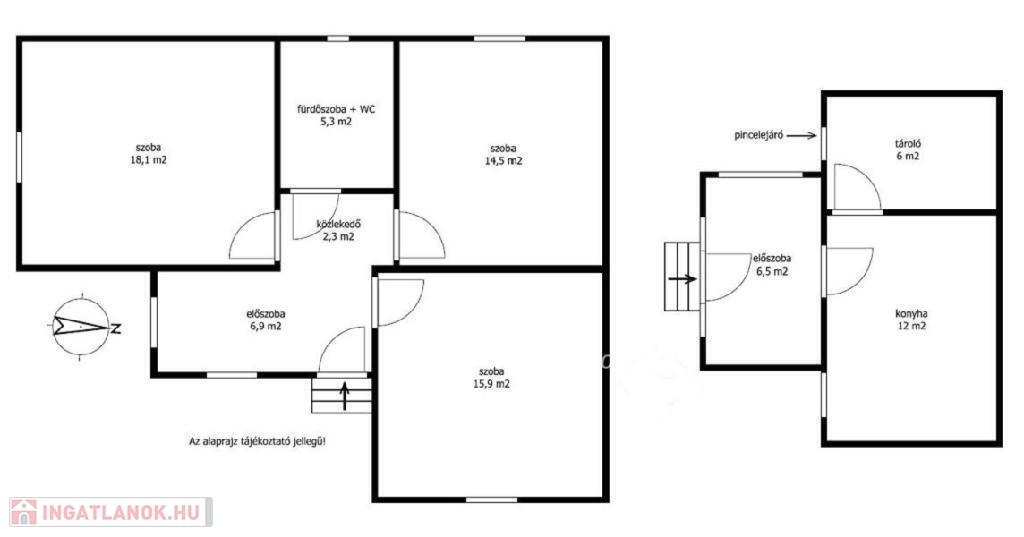
Balaton déli part, Zamárdi, 87 m2 családi ház, 730 m2 telek eladó. Az ingatlan a település lakóövezetében helyezkedik el, 600 méterre a kiépített szabadstrandtól. A 63 m2-es lakóház lakóterét egy 24 m2-es külön épületben nyári konyha egészíti ki tárolóval és pincével. A családi ház fűtését gázkonvektor biztosítja, a melegvízről bojler gondoskodik. Az ingatlan értékét növeli egy több lehetőséget rejtő melléképület, illetve egy fúrt kút, ami ellátja a hangulatos, dísznövényekkel, valamint alma- és diófával ültetett, tágas kertet. Az ingatlan kiválóan alkalmas állandó lakhatásra és nyaralásra is, de tökéletes választás lehet befektetési céllal kiadásra is. A kisebb épület könnyen átalakítható egy önálló apartmanná, a saját termésű gyümölcs pedig igazi kincs a mai világban. Lokáció tekintetében ritka lehetőség egy közkedvelt településen, párszáz méterre a strandtól, vasútállomástól, bevásárlási lehetőségtől. Bővebb információért keressen telefonon!

Referencia szám: M317642

дані будинок

87 Квадратні метри

730 Квадратні метри

Середній

Приватний будинок

Цегла

Конвекторне

Газ

Комфорт

Старше 50 років

Не вказано

Одноповерховий

Не вказано

Мапа