будинок продається , Будапешт XXII. Район

Головна сторінка » будинок продається , Будапешт XXII. Район » будинок продається , Будапешт XXII. Район

199 000 000 Ft

€510 479
Дані особи, яка дає оголошення

Szabó Zoltánné

Написати повідомлення
Повідомлення має містити не менше 10 символів.
Описання

Перекладений текст

Оригінальний текст
BUDAFOKI ÚJ ÉPÍTÉSŰ ÖNÁLLÓ HÁZ GARÁZZSAL! ÁTADÁS IDÉN ŐSSZEL.

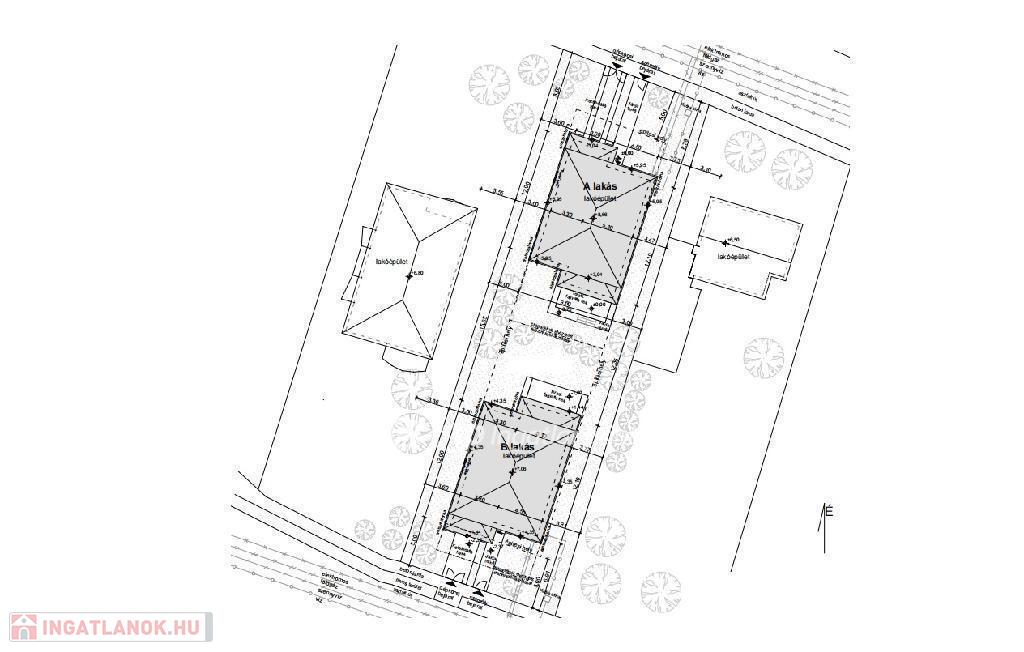
Két utcára nyíló telken épül kettő önálló épület, társasházi jogviszonnyal, külön mérőórákkal kerül átadásra.
Az alaprajzok mindkét épületben egyformák, eltérés a színekben, a fekvésben és az árban lesz (antracit és téglavörös).

A B. épület, a vörös cserepes már ELKELT!

A házak önálló épületek, a saját telekrész 410 m2, saját bejáratú. Az építkezés után a telket rendbe teszik, az árban benne van a kerítés és a garázs mellé 2 autónak murvázott felszíni beálló.

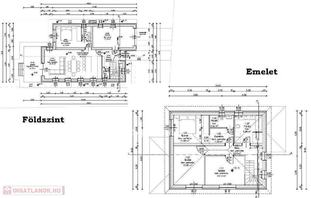
Jó beosztású, a teraszos amerikai konyhás étkező / nappali mellé 4 külön nyíló hálószoba, ebből kettő hálónak van saját fürdőszobája. Az emeleten gardrób is helyett kapott. Az emelet teljesértékű szint, nem tetőtér beépítés.

MŰSZAKI TARTALOM:
Porotherm 30-as falazat, 15 cm külső homlokzati szigetelés.
Leier beton cserép, ereszcsatorna rendszerrel.
25 cm tetőszigetelés, 12 cm lábazat szigetelés.
E gerendás vasbeton födém.
3 rétegű üvegezéssel ellátott műanyag nyílászárók.
Elektromos alumínium redőnyök, szúnyoghálóval.
Villamos energia: 1 x 32 A, 2 x 16 A + 3 x H tarifa 16 A.
Igény esetén napelem rendszer telepítésének előkészítése.
Minden helyiségben padlófűtés, helyiségenként szabályozható.
Hőszivattyú-típusa : HAJDU HPAW 12 KW.
Vízmelegítő: ARISTON LYDOS HYBRID 100 L Hőszivattyús.
Elektromos kapu, a kerítésen személybejáró kiskapuval.
Hideg- és meleg burkolatok 8000 Ft /m2, a beltéri ajtók 80.000 Ft /db, a kád 100.00 Ft /db, szaniterek 30.000 Ft /db árat tartalmaz az ingatlan vételára. Még választható, illetve a rugalmas beruházóval egyeztethető.

A HÁZAK ÖNÁLLÓ MÉRŐÓRÁKKAL, HASZNÁLATBAVÉTELI ENGEDÉLLYEL, TÁRSASHÁZI ALAPÍTÓ OKIRATTAL és H- TARIFÁS VILLANYÓRÁVAL kerülnek átadásra. Várható átadás 2025. november eleje.

Az ingatlanra CSOK PLUSZ FELVEHETŐ, várható energetikai tanúsítványa: A+

Budafok XXII. kerület Budafok városrészen épülnek a házak, referenciák a kerületben megtekinthetők. Családi házas, zöld környezet, teljes infrastruktúra.
Az OTP Ingatlanpont teljeskörű ügyintézéssel áll rendelkezésére.
További információért és személyes megtekintésért, kérem hívjon telefonon.

дані будинок

140 Квадратні метри

410 Квадратні метри

Будується

Приватний будинок

Цегла

Електричне

Не вказано

Подвійний комфорт

Новобудова

Не вказано

1 рівень

Не вказано

Мапа
Фотографії