офіс продається , Будапешт XXII. Район

Головна сторінка » офіс продається , Будапешт XXII. Район » офіс продається , Будапешт XXII. Район

125 000 000 Ft

€350 317
Дані особи, яка дає оголошення

Horváth Zsolt

Написати повідомлення
Повідомлення має містити не менше 10 символів.
Описання

Перекладений текст

Оригінальний текст
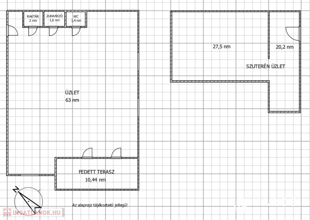
Eladásra kínálom ezt a XXII. kerületi üzlethelyiséget, mely már 17 éve üzemel, azonban a vállalkozás kinőtte, ezért nagyobbra váltanak. Egy földszinti 68 négyzetméteres és egy szuterén 48 négyzetméteres, mely jelenleg raktárként működik. Egy 40 négyzetméteres kerthelyiség is jár az üzlethelyiség(ek)hez. A földszinti üzlethelyiségbe egy 10 négyzetméteres fedett teraszon át jutunk. Minden közmű bekötve, ezen felül hűtő-fűtő klíma is van, mely jelenleg is a kellemes hőmérsékletet szolgáltatja. Van egy másik, választható fűtési mód is: gáz-cirkó fűtési rendszere kiépítve, radiátor hőleadókkal.
Az üzlethelyiség egy társasházban található, ezért bármilyen csendes tevékenységű vállalkozás folytatható, de akár lakássá is lehet minősíttetni.

További kérdéseivel forduljon hozzám bizalommal!
Horváth Zsolt
+36 (30) 463 1474
(További képekért és információkért kérem hívjon!)

дані офіс

Не вказано

Офисное помещение

116 Квадратні метри

Не вказано

Не вказано

Фотографії