будинок продається , Будапешт XVIII. Район

Головна сторінка » будинок продається , Будапешт XVIII. Район » будинок продається , Будапешт XVIII. Район

122 000 000 Ft

€316 489
Дані особи, яка дає оголошення

Meszesánné Márki Ildikó

Написати повідомлення
Повідомлення має містити не менше 10 символів.
Описання

Перекладений текст

Оригінальний текст
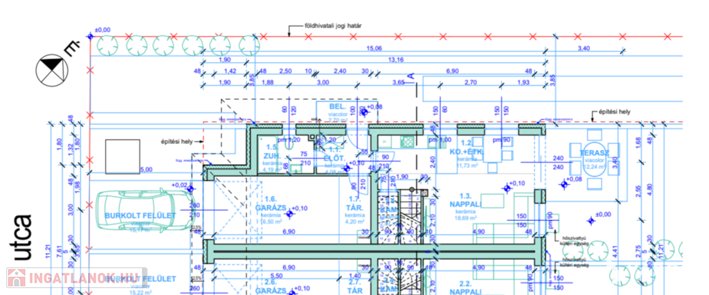
Eladó Budapest 18. kerület Erdőskert városrészén csendes utcában, közel a belvároshoz, jó közlekedéssel rendelkező új építésű 118 m2-es ikerfél, 12,34 m2-es terasszal, 175 m2-es leválasztott telekrésszel.
Az ingatlanhoz tartozik egy 111 m2-es közös használatú bejáró, amely a hátsó kerthez biztosítja a kényelmes bejutást és a telek hátsó felében épült ingatlan megközelítését is biztosítja.

A két lakás között dupla főfal és légrés.

A garázs előtt 5 m előkert került kialakításra, így szükség esetén egy további autó felszíni beállása biztosított.

Az ingatlan bejárata az oldalkert felől nyílik és egy előtetővel védett bejárati ajtón keresztül az előtérbe vezet.
Innen lehet megközelíteni a hátsó kert felé tájolt nappai-étkező-konyhát, az utca felé tájolt zuhanyzót. A konyhához kamra is tartozik. A nappaliból egy nagy teraszra jutunk ki, mely biztosítja a lakás kert kapcsolatát.
Az ingatlanhoz egy, egy állásos garázs és egy tároló is tartozik, az előtéren keresztül belső átjáró a lakótérbe.

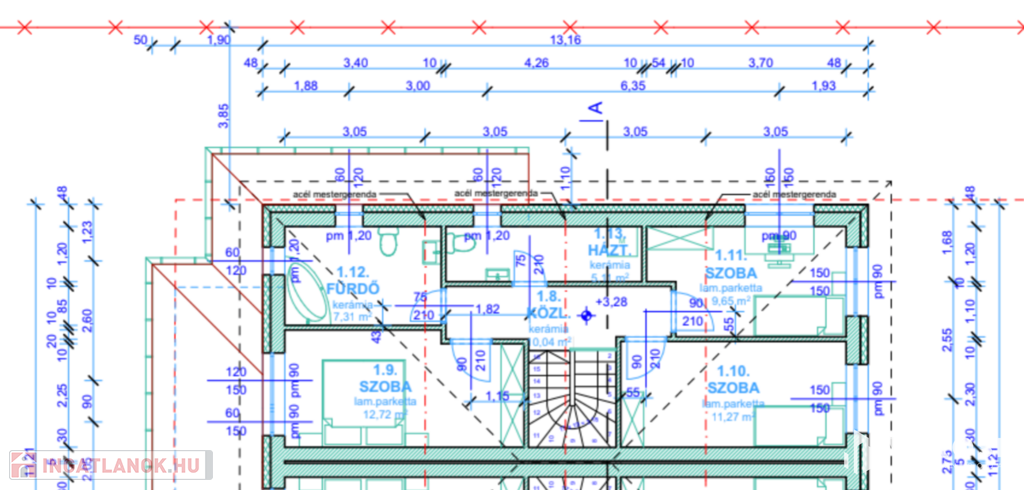
Az emeleten három hálószoba, közlekedő, fürdőszoba és háztartási helyiség kerül kialakításra.
A háztartási helyiségben külön WC is helyet kap.
A belső elrendezést a képek közötti alaprajzon találja.

A ház prémium anyagok felhasználásával, magas műszaki tartalommal készül.
-vasalt sávalapozás 50 cm szélességben,
-2 rét.bitumenes talajnedvsességelleni szigetelés,
- zsalukő lábazat,
- a homlokzati rendszeren 15 cm grafitos szigetelés,
-betongerendás födém a földszinten,
- az emelet felett fagerendás födém,
- 30 cm hőszigetelés a legfelső födémen,
- betoncserép héjapás,
- horganyzott acéllemez csatornák a csapadék elvezetésére,
- a csapadékvizet épített vízgyűjtő ciszternába vezetve,
- levegő-víz hőszivattyú lesz a tárolóban elhelyezve,
amely biztosítja a fűtést és a meleg víz ellátást,
- H tarifa tovább csökkenti a felhasznált elektromos áram árát,
- padlófűtés, plusz a fürdőkben törölközőszárítós radiátorok is fel lesznek szerelve,
- 3 db inverteres klíma, amely egész évben segíti a kellemes hőérzet elérését,
- műanyag 5 légkamrás nyílászárók,
- nyitásérzékelő minden helyiségben,
- rejtett redőnytokok helyének kiépítésével,
- alumínium redőnyök ,
- szúnyogháló helyiségenként 1 db,
- riasztó rendszer a biztonságért,
- elektromos kapu

Az építkezés folyamatában igény szerinti belső kialakítás, választható burkolatok, szaniterek, belső ajtók, a kiegészítő műszaki tartalom szerinti elszámolással.
Több mint 10 éves tőkeerős cég , sok referencia ház a környéken , különböző építési fázisokban is megtekinthető építkezések.
Várható átadás 2026. Il. negyedév.
Szerződéskötését ügyvédi háttérrel biztosítjuk, hitelügyintézés bank független hiteltanácsadóval.

Az elhelyezkedést tekintve a környék kiváló infrastruktúrával bír, jó közlekedési lehetőségek, közel a belvároshoz, mégis távol a város zajától.

Ha olyan ingatlant keres, amely kellemes csendez zöldövezeti kiváló infrastruktúrával akkor ez egy jó lehetőség. További információkért keressen elérhetőségeimen!


Az ingatlan Budapest belvárosától könnyen megközelíthető, ugyanakkor távol esik a város zajától, így tökéletes választás azoknak, akik a nyugodt lakókörnyezetet kedvelik. Az ingatlan a környező zöld övezetnek és a jó közlekedési kapcsolatoknak köszönhetően kiválóan alkalmas családoknak és pároknak egyaránt.

Ne hagyja ki ezt a ritka lehetőséget, vegye fel velünk a kapcsolatot még ma, hogy személyesen is megtekinthesse ezt a kiváló ingatlant!
(További képekért és információkért kérem hívjon!)

дані будинок

118 Квадратні метри

175 Квадратні метри

Відмінний

Будинок-близнюк

Цегла

Не вказано

Не вказано

Не вказано!

Не вказано!

Не вказано

Не вказано

Не вказано