офіс продається , Будапешт XIV. Район

Головна сторінка » офіс продається , Будапешт XIV. Район » офіс продається , Будапешт XIV. Район

43 900 000 Ft

€112 084
Дані особи, яка дає оголошення

Sinkó Lászlóné Nóra

Написати повідомлення
Повідомлення має містити не менше 10 символів.
Описання

Перекладений текст

Оригінальний текст
FELÚJÍTOTT ÜZLETHELYISÉG A HUNGÁRIA KÖRÚT KÖZELÉBEN ELADÓ ÉS KIADÓ!!!

A Hungária körút és a Fogarasi úti Tesco között frekventált részen eladó egy IGÉNYESEN FELÚJÍTOTT, bútorozatlan üzlethelyiség.

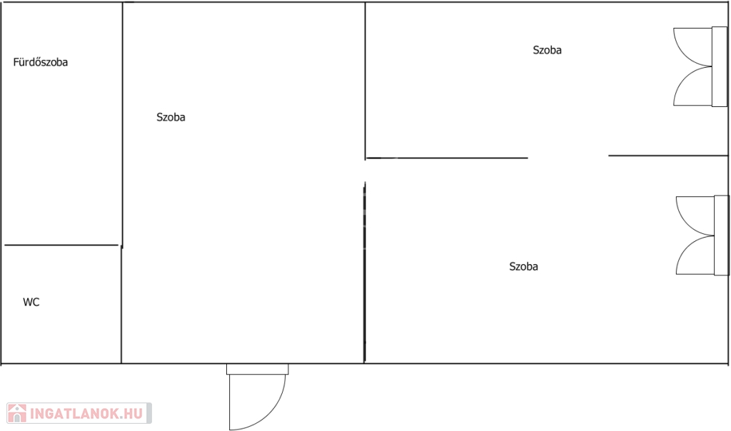
Az üzlethelyiség három egybenyíló helyiségből és egy nagyobb fogadóhelyiségből áll. A válaszfalak bonthatók vagy mozgathatók.
Tartozik hozzá még egy külön beépített zuhanyfülkés fürdőszoba mosdókagylóval és külön WC.
A nagyobb helyiség 24 m2 , a 2 kisebb helyiség pedig 9 és 11 négyzetméteresek.
Belmagassága: 2.9 méter
Fűtése elektromos Ariston kazán.
Fekvése déli.
Parkolás: utcán lehetséges, mely ingyenes.

Alkalmas oktatóteremnek vagy más célokra is 2026.március 1-től pl.kozmetikaszalon, masszázszalon, élelmiszerüzlet, edzőterem,
kutyakozmetika, állatorvosi rendelő, melegkonyha.

Bérleti dija: 350.000 Ft/hó
Kaució: 2 hónap

Lakhatásra is alkalmas, egyszobás lakást értékegyeztetéssel beszámítok.

Azonnal költözhető!

Befektetésre is alkalmas.

Infrastruktúra: közel van a Fogarasi úti Tesco áruház
Közlekedés : 98-as autóbusz, 80-as trolibusz a Népstadion és az Egressy tér felé.

Amennyiben hitelre lenne szüksége szakképzett hitelügytézőink INGYENES szolgátatást nyújtanak.
Ügyvédi hátteret is biztositunk!

Hívjon bizalommal!

дані офіс

Не вказано

Офисное помещение

41 Квадратні метри

Не вказано

Не вказано

Мапа
Фотографії