квартира продається , Будапешт XIII. Район

Головна сторінка » квартира продається , Будапешт XIII. Район » квартира продається , Будапешт XIII. Район

89 900 000 Ft

€237 560
Дані особи, яка дає оголошення

Somogyi Nikoletta

Написати повідомлення
Повідомлення має містити не менше 10 символів.
Описання

Перекладений текст

Оригінальний текст
ÚJLIPÓTVÁROSBAN, A VICTOR HUGO UTCÁNÁL – FELÚJÍTOTT, NAGY ERKÉLYES LAKÁS ELADÓ
Budapest XIII. kerületének egyik legkedveltebb részén, Újlipótváros szívében kínálunk megvételre egy keleti fekvésű, világos, felújított lakást.
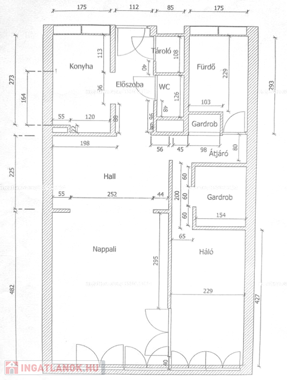
61 m², 2 szoba + étkező, 7 m²-es nagy erkély, 5. emelet, liftes házban
A lakás főbb jellemzői:
• napfényes, keleti tájolás
• tágas nappali és külön hálószoba étkezővel
• nagy, élhető erkély (7 m²)
• ablakos konyha
• külön fürdőszoba és WC
• teljes körű felújítás (villany- és vízvezetékek, burkolatok, konyha, fürdő)
• klímával felszerelt
• pincei tároló tartozik hozzá
• rendezett, liftes társasház, jó lakóközösséggel
Közös költség: 27 000 Ft/hó
Udvari beálló bérelhető
Kiváló elhelyezkedés: boltok, éttermek, orvosi rendelő, tömegközlekedés pár perc sétára, a belváros gyorsan elérhető.
Ideális választás saját otthonnak vagy befektetésnek is, hiszen a környék kiemelten keresett és könnyen kiadható.

дані квартира

5 поверх

Цегла

Теплофікація

Відремонтований

Повний комфорт

21-50 років

61 Квадратні метри

Не вказано

Власний

Не вказано

з вулиці

Мапа