квартира продається , Будапешт XIII. Район

Головна сторінка » квартира продається , Будапешт XIII. Район » квартира продається , Будапешт XIII. Район

130 000 000 Ft

€335 709
Дані особи, яка дає оголошення

Kiss Ildikó Mária

Написати повідомлення
Повідомлення має містити не менше 10 символів.
Описання

Перекладений текст

Оригінальний текст
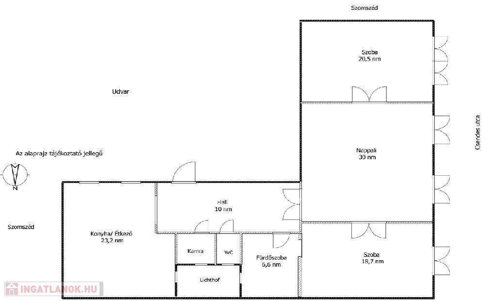
***Budapest szívében, mégis CSENDES utcában eladó egy 116 nm-es, VILÁGOS, jó állapotú POLGÁRI lakás kivételes elhelyezkedéssel és átalakítási lehetőségekkel!***

Budapest központjában, a WESTEND City Center és a NYUGATI pályaudvar közvetlen szomszédságában, ugyanakkor egy kellemesen CSENDES mellékutcában kínáljuk megvételre ezt a TÁGAS, NAPFÉNYES, 3 + 1 félszobás POLGÁRI lakást.

Jelenleg 3 szoba + nagy, étkezővel egybenyitott konyha elrendezésű, jJÓ állapotú ingatlan.
A lakás igazi RITKASÁG a piacon: méretéből adódóan könnyedén 2, akár 3 különálló lakásra is osztható, és a kialakítás lehetővé teszi egy új, külön bejárat megnyitását is ez komoly értéknövelő és befektetési lehetőség.
SzMSz nem tiltja a rövid távú lakáskiadást sem.

Műszaki háttér és állapot: a lakásban és a társasházban megtörtént a teljes cső- és elektromos hálózat cseréje; folyamatosan KARBANTARTOTT KULTÚRÁLT ház; a tető felújítása nemrég lezárult; lift jelenleg nincs; a lakáshoz saját, száraz pincei TÁROLÓ tartozik

A lakás 1/1 tulajdonosé, per- és tehermentes, néhány hónapon belül rugalmasan költözhető.

A különleges elhelyezkedés és a nagy alapterület miatt tökéletes választás kiadásra, befektetésnek vagy annak a családnak, aki a belváros pezsgése mellett szeretné élvezni egy klasszikus POLGÁRI otthon eleganciáját és a mellékutca nyugalmát.

Ha ingatlan vásárlásával egy ÉRTÉKÁLLÓ BEFEKTETÉST is szeretne egyben, akkor ez egy remek lehetőség az ön számára.

Az OTP Ingatlanpont, mint egyetlen közvetlen banki hátterű ingatlanközvetítő társaság teljes körű ügyintézéssel és kedvezményes pénzügyi konstrukciókkal áll ügyfelei rendelkezésére!
VIP-szolgáltatást nyújtunk az OTP-hiteltermékek ügyintézésében.
Jogi és pénzügyi segítséget nyújtanak szakértőink, hogy az adásvétel folyamata gördülékeny legyen.

Ha felkeltette érdeklődését az ingatlan, kérem, hívjon bizalommal akar hétvégén is!

дані квартира

3 поверх

Цегла

Cirkо

Добрий

Повний комфорт

Старше 50 років

116 Квадратні метри

Не вказано

Не вказано

Не вказано

з вулиці

Мапа