офіс продається , Будапешт XIII. Район

Головна сторінка » офіс продається , Будапешт XIII. Район » офіс продається , Будапешт XIII. Район

116 849 990 Ft

€308 246
Дані особи, яка дає оголошення

Bajnóczi Beáta

Написати повідомлення
Повідомлення має містити не менше 10 символів.
Описання

Перекладений текст

Оригінальний текст
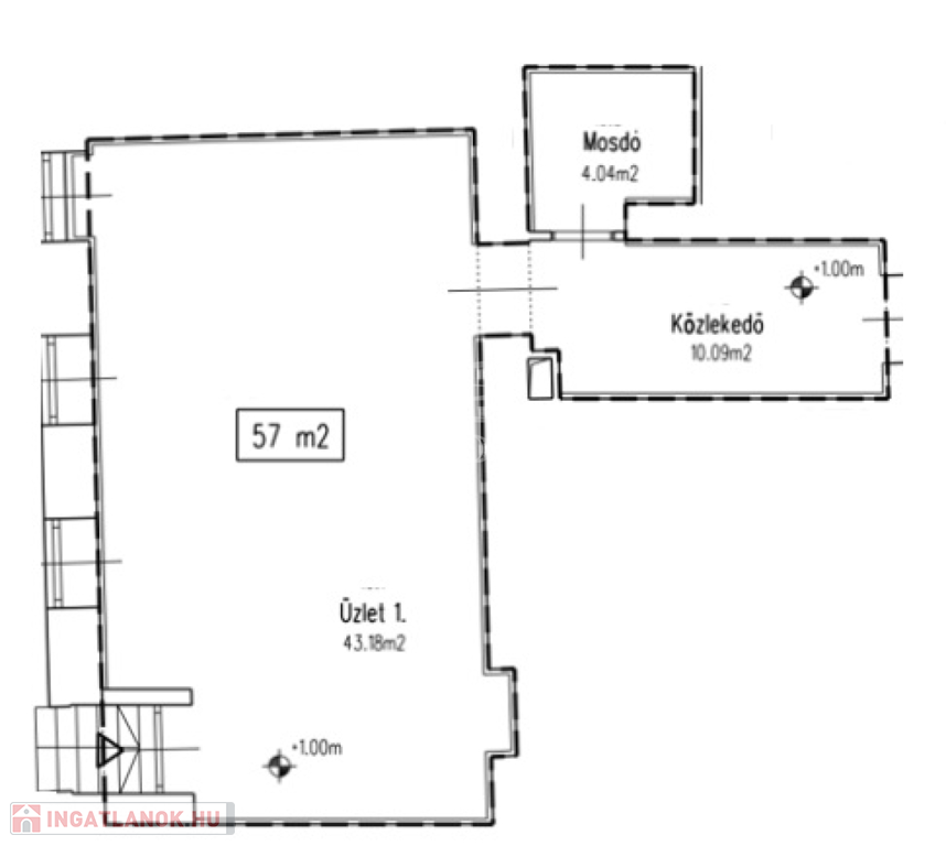
BUDAPEST XIII. kerületben, a DUNA PLÁZA közelében, 51 lakásos, liftes, téglaépítésű társasházban, utcai bejáratú, földszinten elhelyezkedő, 57 m2 alapterületű üzlethelyiség ELADÓ.
A 2 emeletes 51 lakásos, liftes, téglaépítésű társasház a századfordulón épült, melynek teljes átépítése, felújítása történt és kapta meg jelenlegi arculatát. A fűtésről, meleg víz ellátásról elektromos cirkó gondoskodik, radiátor hő leadóval és hűtő-fűtő klíma is beszerelésre került. Az épület energetikai besorolása „B”.

Átadás: 2025. II. negyedév

Az épület biztonságáról 24 órás portaszolgálat gondoskodik. Gépjárművek parkolására a ház előtti kialakított parkolóban van lehetőség.
Az üzlethelyiséget tekintve, a lakók érdekeit szem előtt tartva, a tervek szerint nem vendéglátó egység létesítése a cél, amely esetleg a lakók nyugalmát és biztonságát zavarná.

A folyamatosan fejlődő városrészben a lokáció és a közlekedés kiváló. Közelben a Duna Pláza, Tesco bevásárlóközpont.
Hívjon bizalommal, ha az ajánlat felkeltette érdeklődését.
Bajnóczi Beáta
GDN Region Ingatlan

дані офіс

Не вказано

Офіс

57 Квадратні метри

У квартирі

Не вказано

Мапа
Фотографії