квартира продається , Будапешт XI. Район

Головна сторінка » квартира продається , Будапешт XI. Район » квартира продається , Будапешт XI. Район

67 400 000 Ft

€178 104
Дані особи, яка дає оголошення

Turzó Attila Krisztián

Написати повідомлення
Повідомлення має містити не менше 10 символів.
Описання

Перекладений текст

Оригінальний текст
ÚJBUDAI, PARKRA NÉZŐ, VILÁGOS LAKÁS KIVÁLÓ KÖZLEKEDÉSI ADOTTSÁGOK MELLETT!
A 11. kerület közkedvelt részén, Újbudán eladó egy világos, barátságos hangulatú, egyszobás lakás.
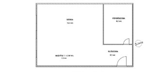
Eladásra kínálunk egy 36 nm-es, egyszobás lakást Buda egyik kedvelt, kiváló közlekedési adottságokkal rendelkező részén. A lakás egy kulturált, rendezett társasházban található, a félemeleten.
Kiváló közlekedési lehetőségek, egészségügyi, kulturális és oktatási intézmények, bevásárlási lehetőségek közelsége.

Főbb paraméterek:
Az ingatlan egy 36 nm alapterületű, egyszobás, kiváló állapotú, azonnal költözhető lakásból áll. A lakáshoz tartozik egy zárható tároló is.
A lakás a félemeleten található, a szoba déli fekvésű, napfényes, világos.
Nappali, előszoba, fürdőszoba, valamint konyha áll rendelkezésre a kiváló elrendezésű lakásban.
Fűtés: alacsony költségű gázkonvektor, a fűtést és a meleg vizet gázkazán biztosítja. A beépített konyha gáztűzhellyel működik.
A társasház jó lakóközösséggel, folyamatos fejlesztésekkel, rendezett közös helyiségekkel rendelkezik. A ház rendezett, folyamatosan karbantartott: a tetőt 4 éve cserélték le, az elektromos hálózat cseréje épp folyamatban van, ezután a homlokzat felújítása (szigetelés + festés) következik az idei év során. Célbefizetés a munkálatokra megtörtént.

Kinek ajánljuk?
Ideális választás egyedülállóknak, pároknak, egyetemistáknak, de befektetők számára is kiváló lehetőség, hiszen az elhelyezkedés és az ingatlan adottságai miatt könnyen kiadható, értékálló ingatlanról van szó.
Jöjjön el, nézze meg és szeressen bele ebbe a nagyszerű otthonba!

Amennyiben a hirdetés felkeltette érdeklődését, kérem, hívjon a hét bármely napján! Az OTP Ingatlanpont teljes körű ügyintézéssel áll az eladók és a vevők rendelkezésére! A kínálatunkból választott ingatlan finanszírozásához kedvezményes hitel- és pénzügyi konstrukciókat, CSOK, OSP és egyéb finanszírozási megoldásokat kínálunk.
Egyéb pénzügyi, befektetési kérdésekben is szívesen állok az Önök rendelkezésére.
Az adásvételi szerződés megkötéséhez igény szerint megbízható ügyvédi közreműködést és a kapcsolódó ügyek intézéséhez segítséget nyújtunk.

67400000 Ft

Referencia szám: M322475

дані квартира

Наземний поверх

Цегла

Cirkо

Добрий

Повний комфорт

Старше 50 років

36 Квадратні метри

Не вказано

Не вказано

Не вказано

з вулиці

Мапа
Фотографії