квартира продається , Будапешт V. Район

Головна сторінка » квартира продається , Будапешт V. Район » квартира продається , Будапешт V. Район

294 000 000 Ft

€776 894
Дані особи, яка дає оголошення

Andrássy Róbert

Написати повідомлення
Повідомлення має містити не менше 10 символів.
Описання

Перекладений текст

Оригінальний текст
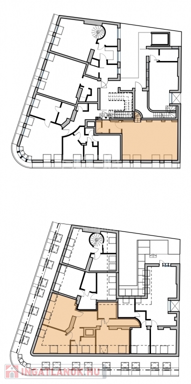
V. kerület Belvárosi részén, napfényes, magasemeleti luxus lakások kerülnek kialakításra a kivitelezéssel párhuzamosan pedig az épület korhűen megújul és egyidejűleg modern felvonó kerül beépítésre. Összesen 174m2 lakóterülettel rendelkezik ez a remek három hálószobás, tetőteraszos ingatlan. A bejárati szinten a konyha nappali mellett egy vizes helyiség kerül kialkaításra, a hálószobák az élettértől jól elszeparálva az emeleten kapnak helyet a mellékhelyiségekkel, innen jutunk fel a privát 28m2-es tetőteraszra mely kizárólag ennek a lakásnak a kényemét biztosítja. Az előrelátó tervezésnek köszönhetően nem lakószobából megközelíthető a tetőterasz így valóban szerves része lehet a lakásnak. Méretéből adódoan akár egy családnak megfelelő lakóhelyet biztosíthat. A mellékelt látványtervek csupán egy, a számtalan megvalósítható lehetőség közül, jelen stádiumban még 100%-ban lehetséges a leendő tulajdonosok elképzeléseinek megvalósítása.

• ÉS MIÉRT ÉPP EZ A LEGMEGFELELŐBB VÁLASZTÁS?
• Kitűnő lokáció a az ország legjobb egyetemei közelében
• Remek tömegközlekedési lehetőségek
• Őrzött mélygarázs a közelben
• Minden egyes lakás, intim, napsütötte terasszal rendelkezik
• Műemlék környezet a klasszikus Belvárosban
• Igény szerinti 100%-ban testre szabott lakások
• Igény esetén extra felszereltség a minőségi lakhatásért


A 147m2-es értékesítési alapterület tartalmazza a nettó 120m2-es lakótéren felül 190cm alatti területek (26m2) és a terasz (28m2) területének 50%-át.
Külön megbízás keretében a megvásárolt lakás teljes bútorozását és felszerelését vállaljuk a bérbeadással és utógondozással együtt így Önnek csak a bérleti díj beérkezését kell ellenőriznie.
Szükség esetén banksemleges hiteltanácsadással tudjuk segíteni a kiszemelt lakás megvásárlását.

дані квартира

4 поверх

Цегла

Cirkо

Відмінний

Повний комфорт

1-5 років

120 Квадратні метри

Не вказано

Власний

Не вказано

з вулиці

Мапа