будинок продається , Törtel

Головна сторінка » будинок продається , Törtel » будинок продається , Törtel

55 900 000 Ft

€146 389
Дані особи, яка дає оголошення

Csobai Lászlóné

Написати повідомлення
Повідомлення має містити не менше 10 символів.
Описання

Перекладений текст

Оригінальний текст
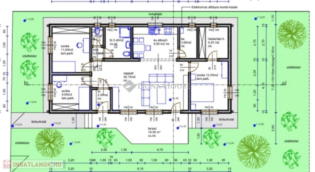
Ceglédtől 15 km távolságra Törtelen kínálom megvételre ezt az új építésű 91 családi házat. Az ingatlan műszaki leírása : - 50 cm beton alapzat+ 15 cm aljzat szigeteléssel ellátva-Fa födém 20 cm kőzetgyapot szigeteléssel - Bramac tető cserépfedés-Impregnált fa szerkezet, kőzetgyapot belső szigeteléssel+ 10 cm vastag porisztirol homlokzati szigeteléssel ellátva, nemes vakolat záró réteggel.-3 rétegű műanyag nyílászárók-elektromos cirkó fűtés padlón keresztül történő hőleadássalSzaniterek , Beltéri ajtók, lámpatestek a vételárbanHideg - meleg burkolatok 6000/nm áron választhatóak. Az épület teljes műszaki leírását megtekintéskor személyesen prezentálom. Várható átadás : 2026.01. hóAmennyiben hirdetésem felkeltette érdeklődését keressen bizalommal.

55900000 Ft

дані будинок

108 Квадратні метри

652 Квадратні метри

Будується

Приватний будинок

З легкою конструкцією

Електричне

Електричне

Не вказано!

Новобудова

Не вказано

Одноповерховий

Не вказано

Мапа
Фотографії