будинок продається , Sajószentpéter

Головна сторінка » будинок продається , Sajószentpéter » будинок продається , Sajószentpéter

28 500 000 Ft

€79 226
Дані особи, яка дає оголошення

Kozák Csaba

Написати повідомлення
Повідомлення має містити не менше 10 символів.
Описання

Перекладений текст

Оригінальний текст

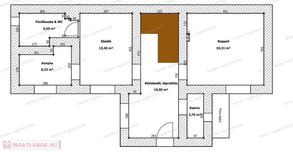
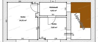
Eladó Sajószentpéter Belvárosában egy 94 m² alapterületű, tégla építésű családi ház, amely 1 221 m²-es telken helyezkedik el. Az ingatlan felújítandó állapotban van, így új tulajdonosa saját elképzelései szerint újíthatja fel és alakíthatja ki a belső tereket.

 

A házban három különálló szoba található, amelyek jól alakítható életteret biztosítanak család számára. A helyiségek elrendezése praktikus, a nagy telekméret pedig lehetőséget ad kert kialakítására, bővítésre vagy akár további fejlesztésre is.

 

A telek délnyugati tájolású, ennek köszönhetően a ház világos, napfényes. A környezet csendes, ugyanakkor a belvárosi elhelyezkedés miatt a boltok, iskola, óvoda és egyéb szolgáltatások rövid időn belül elérhetők.

 

A fűtésről cirkó rendszer gondoskodik. Az ingatlan összkomfortos, minden közmű rendelkezésre áll. A parkolás garázsban megoldott, ami a központi elhelyezkedés mellett külön előnyt jelent.

 

 Az elérhető irányár  28 500 000 Ft, ami figyelembe véve a telket és a ház adottságait, kiváló befektetési lehetőséget kínál. Ne hagyja ki ezt az alkalmat, hogy saját otthona tervezésébe kezdjen!

„Az ingatlan energetikai besorolásának meghatározása jelenleg folyamatban van.

дані будинок

94 Квадратні метри

1 221 Квадратні метри

Потребує ремонту

Приватний будинок

Цегла

Cirkо

Не вказано

Повний комфорт

Не вказано!

Не вказано

Не вказано

Не вказано