будинок продається , Pilis

Головна сторінка » будинок продається , Pilis » будинок продається , Pilis

16 000 000 Ft

€44 540
Дані особи, яка дає оголошення

Pilis Anna

Написати повідомлення
Повідомлення має містити не менше 10 символів.
Описання

Перекладений текст

Оригінальний текст
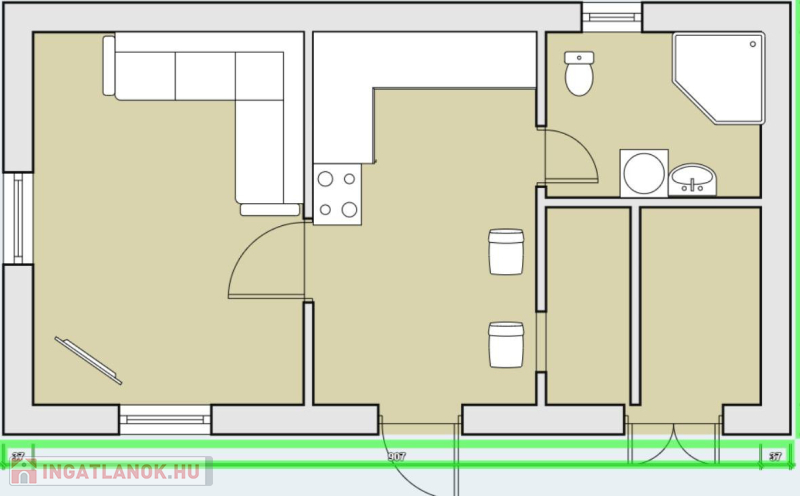
Pilis város zártkerti részében vált eladóvá ez a könnyen gondozható 342nm-es telken megépült 35nm-es gazdasági épület. Benne 1 szoba , konyha ebédlő résszel , fürdőszoba , félszoba helység kiosztással. A ház alatt pince helyezkedik el. Fűtéséről gázkonvektor gondoskodik , meleg víz ellátása boylerről. Fúrt kútról kapja a víz ellátását , emésztőbe ürül. Vegyes falazatú , fafödémes , cserép héjazatú. Szigeteléssel ellátott. Művelés alól nincs kivéve , kifüggesztéssel lehet értékesíteni. Gazdasági épületként feltüntetve. Osztatlan közös tulajdonban , per teher mentesen várja leendőbeli gazdáját ez a kis takaros házacska. Keskeny utcafronti rész 9méter széles. Hosszan benyuló telekkel. Autóval a parkolás az utcán lehetséges.

дані будинок

35 Квадратні метри

342 Квадратні метри

Середній

Приватний будинок

Не вказано

Інше

Не вказано

Полукомфорт

Не вказано!

Не вказано

Не вказано

Не вказано

Фотографії