будинок продається , Páty

Головна сторінка » будинок продається , Páty » будинок продається , Páty

109 000 000 Ft

€286 352
Дані особи, яка дає оголошення

Bognár Katalin

Написати повідомлення
Повідомлення має містити не менше 10 символів.
Описання

Перекладений текст

Оригінальний текст
Elvágyódsz a város zajából, de nem akarsz lemondani a stílusról és a kényelemről? Megtaláltuk a tökéletes ingatlant Páty legkedveltebb, csendes, aszfaltos utcájában! Ez a ház nem csak egy ingatlan, ez egy kompromisszum mentes álomotthon!

A házról, ami tökéletes:

Minden új, minden kész: az épület teljeskörű műszaki és esztétikai felújításon esett át. Szigetelt falak, modern belső - ide tényleg csak költözni kell!
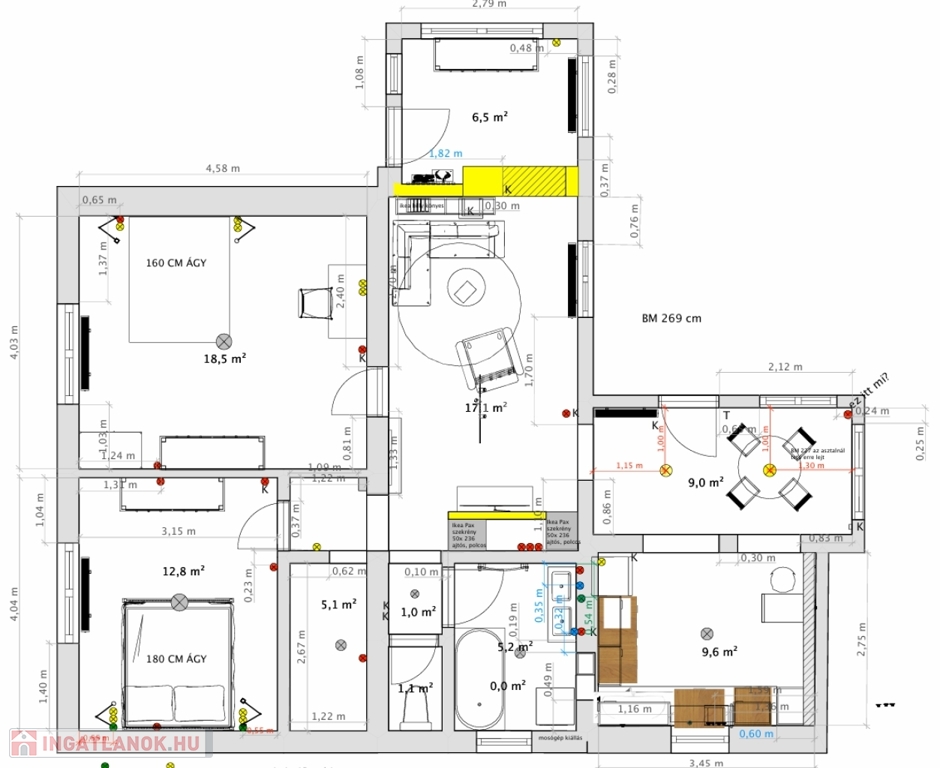
Optimális térérzet: bruttó 109 nm, ahol minden négyzetméter ki van használva.
Elosztás: világos amerikai konyhás nappali + 2 teljes értékű, különnyíló hálószoba, fürdőszoba, külön WC, hangulatos, fedett, déli fekvésű terasz, borospince és gépészeti helyiség.

Rezsibarát és komfortos:

Fűtés: modern kondenzációs kazán radiátoros hőleadással – hatékony és takarékos.
Hűtés: klíma gondoskodik a kellemes hőmérsékletről a nyári kánikulában is.
Nyílászárók: műanyag, redőnnyel és szúnyoghálóval ellátva.
Konyha: minőségi, esztétikus bútorokkal, gépesítve.

Kert és kikapcsolódás:

1100 nm-es telek: itt elfér a kutya, a gyerekek játszótere, a veteményes, sőt még egy medence is!
Fedett terasz: a reggeli kávéd vagy az esti grillpartik tökéletes helyszíne.
Bónusz: saját, hangulatos borospince – tartsd itt a környék legjobb borait!

Kitűnő lokáció:

Páty szíve, ahol a nyugalom nem jelent elszigeteltséget.
Bölcsőde, óvoda, iskola percek alatt elérhető.
Bevásárlási lehetőség, posta, orvosi rendelő, buszmegálló a közelben.
Szuper szomszédság, biztonságos és családias környék.
Kitűnő közlekedés, gyorsan és kényelmesen elérhető Budapest.

Ez a ház nem fog sokáig várni a piacon! Ha egy olyan otthont keresel, ami fenntartható, stílusos és hatalmas kertje van, gyere és nézd meg élőben!

дані будинок

93 Квадратні метри

1 100 Квадратні метри

Відремонтований

Приватний будинок

Цегла

Cirkо

Газ

Повний комфорт

21-50 років

Не вказано

Одноповерховий

Не вказано

Мапа