земельна ділянка/ земля продається , Oroszlány

Головна сторінка » земельна ділянка/ земля продається , Oroszlány » земельна ділянка/ земля продається , Oroszlány

75 000 000 Ft

€208 821
Дані особи, яка дає оголошення

Horváth Csanád

Написати повідомлення
Повідомлення має містити не менше 10 символів.
Описання

Перекладений текст

Оригінальний текст
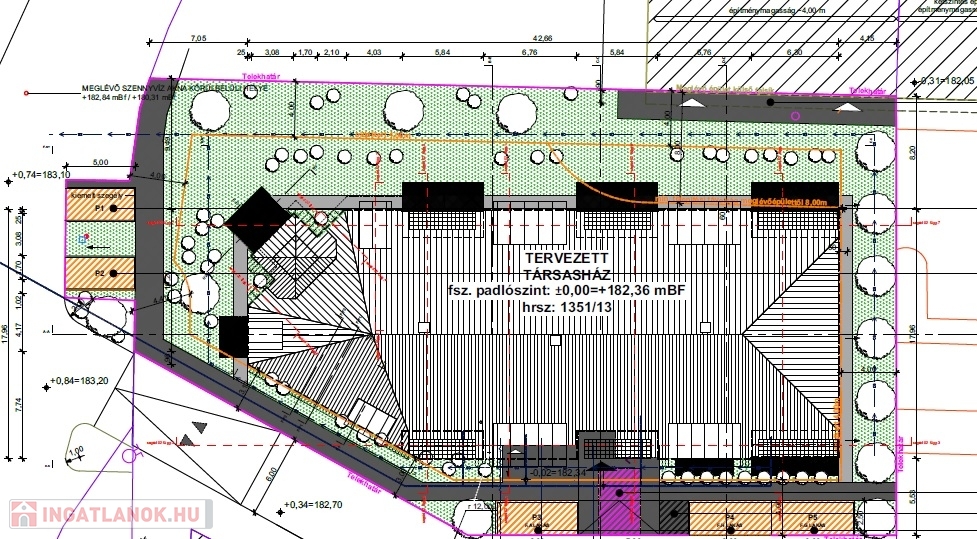
Oroszlány központi részén még érvénye építési engedéllyel, 5%-os ÁFA-val , 22 lakásos projekt kivitelezéséhez alkalmas építési telek eladó.

A tereprendezés már megtörtént. A közmű csatlakozási pontok és a mérőórák a telken belül helyezkednek el.A tervek alapján kalkulált eladható hasznos redukált terület 1750 nm(ebből a lakótér 1530 nm).
A tervdokumentációk, engedélyek természetesen rendelkezésre állnak a mindenkori érdeklődő ügyfelek felé.

Az ingatlan ára tervekkel és engedélyekkel együtt 75.000.000.- Ft + Áfa

Ingatlan vásárlása vagy egyéb hiteligény esetén (hitelek,hitelképesség megállapítása ect.)hiteltanácsadásban komolyan kvalifikált bankfüggetlen szakember segítségével is tudunk szolgálni.Aktuális pályázati lehetőségek elérhetőségével szintén forduljon hozzánk bizalommal.

Tel.: +36-20-36-44-444

Ingatlan 4 You Kft

www.i4you.hu

дані земельна ділянка/ земля

Ділянка під забудову

Не вказано

Не вказано

В межах міста

Не вказано

1 710 Квадратні метри

Не вказано

Не вказано

Фотографії