квартира продається , Mogyoród

Головна сторінка » квартира продається , Mogyoród » квартира продається , Mogyoród

95 500 000 Ft

€263 071
Дані особи, яка дає оголошення

Nyilas Szabina

Написати повідомлення
Повідомлення має містити не менше 10 символів.
Описання

Перекладений текст

Оригінальний текст
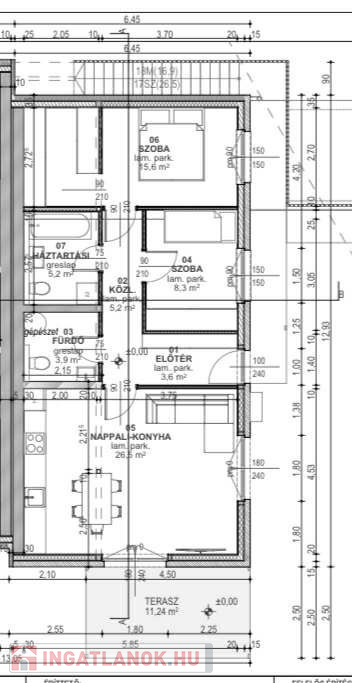
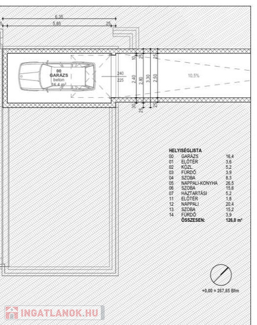
Mogyoród csendes kertvárosi részén eladó egy új építésű ikerház egyik felének födszinti lakása,mely kiváló választás lehet családok számára. 68,3 nm-es lakótérrel, egy 11,24 nm-es terasszal,egy 16,4 nm-es garázzsal és egy 400 nm-es kerttel biztosítja a családi életet. Elrendezését tekintve igazán jól átgondolt, 1 fürdőszoba, 2 különnyíló szoba, 1 háztartási helyiség és egy nagy amerikai konyhás nappali teszi kényelmessé. Budapest könnyen megközelíthető tömegközlekedéssel és autóval egyaránt, mivel a Gödöllő-i hév (Szentjakab megálló) pár perc sétára található, illetve autóval az M3-as autópálya szintén gyorsan elérhető. A fűtés korszerű hőszivattyús berendezéssel van megoldva, illetve padlófűtéssel, és mivel H tarifás így mindezt költséghatékonyan a téli időszakban is.
Átadás várhatóan 2026 decemberében lesz,így még könnyen átformálható a saját ízlésének megfelelően, ha időben lecsap erre a lehetőségre!

Egyedi igényekre szabott lakáshitelekkel állunk rendelkezésére. Bankfüggetlen hitelcentrumunk az országban elérhető összes bank és hitelintézet ajánlatát versenyezteti az Ön számára díjmentesen. Munkatársaink nagy szakmai tapasztalattal várják Önt az előre egyeztetett időpontban.

Bővebb információért és a megtekintéssel kapcsolatban hívjon bizalommal!

дані квартира

Наземний поверх

Цегла

Не вказано

Відмінний

Не вказано

Не вказано

80 Квадратні метри

Не вказано

Не вказано

Не вказано

виходить в сад

Фотографії