будинок продається , Iregszemcse

Головна сторінка » будинок продається , Iregszemcse » будинок продається , Iregszemcse

28 900 000 Ft

€75 639
Дані особи, яка дає оголошення

Kránicz Éva

Написати повідомлення
Повідомлення має містити не менше 10 символів.
Описання

Перекладений текст

Оригінальний текст
Eladó családi ház Iregszemcsén. Nyugalom, tér és lehetőségek a Balaton közelében!
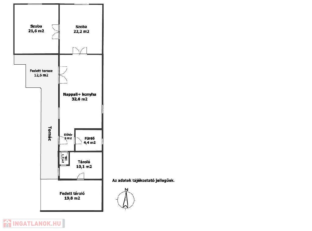
Tolna megye kedvező fekvésű településén, Iregszemcsén, a Balatontól mindössze 30 km-re, a településközpont közelében kínálunk eladásra egy részben felújított, 85 m2 alapterületű családi házat, amely tökéletes választás állandó otthonnak, nyaralónak vagy akár befektetésnek is!

Amit kínál ez az ingatlan:
Világos, tágas terek , 2 kényelmes szoba, amerikai konyhás nappali, bővíthető elrendezés.
Modern, beépített konyha gépekkel és konyhabútorral, melyek az ár részét képezik.
Hangulatos fedett terasz és tornác, amely ideális reggeli kávézásokhoz, pihenéshez.
Új tető és új utcafronti műanyag nyílászárók, hosszú távú megtakarítást jelentő felújítások.
Elektromos hálózat nagy része felújított.
Fűtési lehetőségek: elektromos fűtőpanel + kályha.
Új bojler beépítve, a fürdőszoba és mellékhelyiség felújítása az új tulajdonos ízlésére vár.
Fedett tároló vagy gépkocsibeálló, amely praktikus, többfunkciós térként használható (akár lakószobává is alakítható).

Külső adottságok:
Sík, jól hasznosítható telek, a végében egy tároláshoz tökéletes pincével.
Központi elhelyezkedés,pár perces sétára minden fontos szolgáltatás elérhető.

Ideális választás mindazoknak, akik vidéki környezetben, de jó közlekedéssel keresnek otthont vagy nyaralót, esetleg befektetés céljából vásárolnának.
Ne hagyja ki ezt a kivételes lehetőséget! Kérjen időpontot megtekintésre még ma!

Referencia szám: M311643

дані будинок

85 Квадратні метри

605 Квадратні метри

Добрий

Приватний будинок

Змішаний

Електричне

Електричне

Комфорт

Старше 50 років

Не вказано

Одноповерховий

Не вказано

Мапа