будинок продається , Hernád

Головна сторінка » будинок продається , Hernád » будинок продається , Hernád

65 000 000 Ft

€170 761
Дані особи, яка дає оголошення

Gáspár Kata

Написати повідомлення
Повідомлення має містити не менше 10 символів.
Описання

Перекладений текст

Оригінальний текст
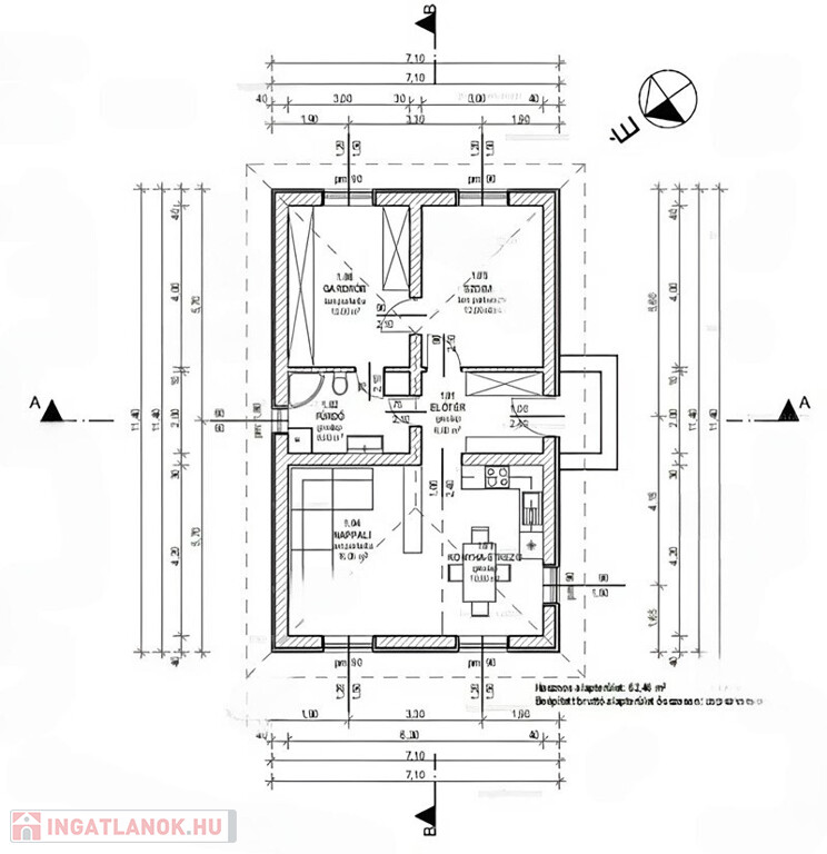
Hernádon kínálunk eladásra egy új építésű, önálló családi házat, mely egy 1160 m²-es telken helyezkedik el.A nettó 63 m² alapterületű otthon praktikus elrendezésű: két hálószoba, amerikai konyhás nappali, előtér és fürdőszoba található benne.A modern kényelmet korszerű megoldások biztosítják: a fűtés elektromos rendszeren keresztül működik, a hűtést klíma segíti, mindez H-tarifás árammal kiegészítve. A melegvíz-ellátásról intelligens villanybojler gondoskodik.Az épület YTONG falazattal és 10 cm-es hőszigeteléssel készül, tetőszerkezete betoncserepes fedést kap. Az ár a teljesen kulcsrakész állapotra vonatkozik, így a beköltözéshez már csak a bútorokat kell hozni.Az udvar egy részét szilárd burkolattal látják el, így a parkolás és a kerti használat is kényelmes lesz.A ház 2025 októberében átadásra került.Keressen bizalommal, hogy személyesen is megmutathassam Önnek ezt a kiváló ár-érték arányú ingatlant!
Gáspár Kata 06/20 400-4035

дані будинок

63 Квадратні метри

1 160 Квадратні метри

Відмінний

Приватний будинок

Не вказано

Не вказано

Не вказано

Повний комфорт

Не вказано!

Не вказано

Не вказано

Не вказано