земельна ділянка/ земля продається , Harta

Головна сторінка » земельна ділянка/ земля продається , Harta » земельна ділянка/ земля продається , Harta

120 000 000 Ft

€305 849
Дані особи, яка дає оголошення

Borosné Hajnalka

Написати повідомлення
Повідомлення має містити не менше 10 символів.
Описання

Перекладений текст

Оригінальний текст
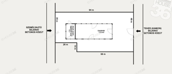
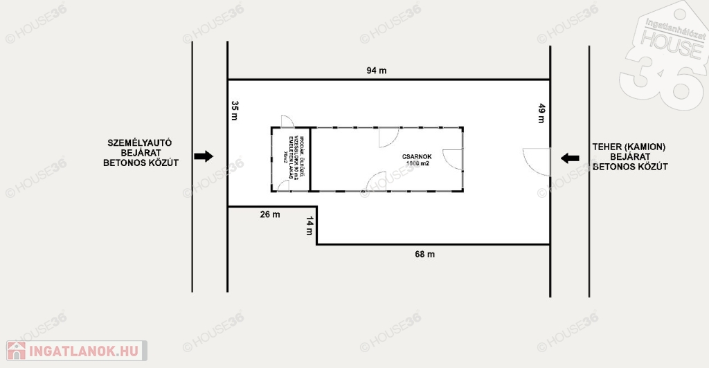
Eladó ipari csarnok a Duna kanyarulatában kiváló adottságokkal.
Megvételre kínálunk egy 1000 m2 -es ipari csarnokot amely 4388 m2 -es telken helyezkedik el.
Az ingatlan kiváló lehetőségeket biztosít ipari, gyártó, és logisztikai tevékenységekre, hiszen utánfutók, hajóalkatrészek gyártására használták.
Ez az ingatlan tökéletes választás vállalkozások számára ,akik egy jól megközelíthető, nagy területtel rendelkező, azonnal használható ipari csarnokot keresnek.

A csarnok főbb jellemzői:
- három ipari kapu a könnyű be és kirakodásért
- iroda, öltöző, tusoló és étkező tér a dolgozók kényelméért
- tetőtéri rész ( 76 m2) amely lakás vagy további iroda kialakítására alkalmas, dunaparti panorámával
- erős ipari infrastruktúra : 3 x 100 Amper áram, saját trafó
- masszív szerkezet, zsalukő betonnal kiöntve,5 cm szigetelés
- trapézlemez tető
- ventillátoros légbefúvós kályha

Ne hagyja ki ezt a remek lehetőséget!
Hívjon most, és tekintse meg személyesen!
Az iroda legfrissebb, aktuális kínálatát a HOUSE36 saját weboldalán találja!

дані земельна ділянка/ земля

Ділянка промислового призначення

Не вказано

Не вказано

В межах міста

Не вказано

4 387 Квадратні метри

Не вказано

Не вказано

Мапа
Фотографії