будинок продається , Hajdúsámson

Головна сторінка » будинок продається , Hajdúsámson » будинок продається , Hajdúsámson

97 500 000 Ft

€266 364
Дані особи, яка дає оголошення

Takács Tamás

Написати повідомлення
Повідомлення має містити не менше 10 символів.
Описання

Перекладений текст

Оригінальний текст
Hajdúsámson csendes részén, rövid időn belül beköltözhető, modern családi ház eladó!

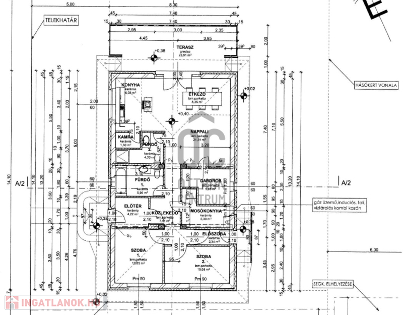
Az ingatlan egy 93 m²-es, új építésű, korszerű kialakítású 3 szobás + amerikai konyhás-nappalis családi ház, amely kimagasló műszaki tartalommal és energiahatékonysággal készül.

Szerkezet és szigetelés
- 30 cm-es Porotherm/Leier tégla falazat
- 15 cm homlokzati EPS hőszigetelés
- 10 cm XPS lábazati szigetelés
- 30 cm födémszigetelés
- 3 rétegű üvegezésű, 6 légkamrás műanyag nyílászárók

Fűtés és gépészet
- korszerű padlófűtés
- a vételár része 2 db inverteres klíma
- a modern technológiának köszönhetően rendkívül alacsony fenntartási költség várható

Közműellátás
- A kivitelező a közművek telken belüli csatlakoztatását elvégzi, amennyiben erre adott a lehetőség.
- Városi víz hiányában házi vízmű kerül kialakításra
- Csatornahálózat hiányában 3 m³-es zárt szennyvíztartály készül (igény szerint nagyobb kapacitásúra is cserélhető, azonban ez nem része az alapárnak)

A ház jelenleg körülbelül 70%-os készültségi szinten áll, a tervezett átadás 3–4 hónapon belül várható.

Az ingatlan kiváló választás mindazoknak, akik megbízható kivitelezésű, jól szigetelt, energiatakarékos és alacsony rezsijű új otthont keresnek nyugodt, csendes környezetben, mégis elérhető közelségben a várostól.

дані будинок

93 Квадратні метри

728 Квадратні метри

Відмінний

Приватний будинок

Не вказано

Cirkо

Не вказано

Не вказано!

Не вказано!

Не вказано

Не вказано

Не вказано

Фотографії