будинок продається , Hajdúsámson

Головна сторінка » будинок продається , Hajdúsámson » будинок продається , Hajdúsámson

95 000 000 Ft

€246 664
Дані особи, яка дає оголошення

Tréki-Simonyi Anett

Написати повідомлення
Повідомлення має містити не менше 10 символів.
Описання

Перекладений текст

Оригінальний текст
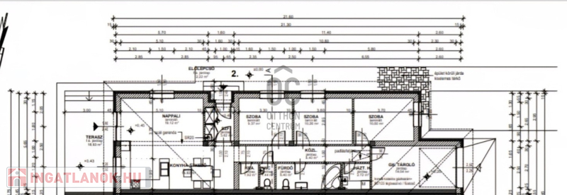
Eladásra kínálunk egy 102 m²-es, kulcsrakész állapotú ikerházat, amely 425 m²-es telken helyezkedik el, Sámsonkert legfrekventáltabb részén, az S Box bevásárlóközpont közelében.

Főbb jellemzők:

✔ 3 kényelmes szoba + tágas nappali amerikai konyhával
✔ Fürdő + külön WC, mosókonyha, kamra
✔ Terasz közvetlen kijárattal a nappaliból
✔ Korszerű 15 cm külső hőszigetelés – alacsony fenntartási költségek
✔ Elektromos garázskapu + udvari beálló
✔ Szúnyoghálós ablakok a nyugodt, rovarmentes nyári estékhez


A ház kiváló elrendezésének és modern kialakításának köszönhetően családok számára tökéletes választás.
A környék rendezett, a közlekedés kiváló, így a városközpont és a környező települések is gyorsan elérhetők.


Ne hagyja ki ezt a remek lehetőséget – hívjon most, és tekintse meg személyesen!

дані будинок

102 Квадратні метри

427 Квадратні метри

Відмінний

Будинок-близнюк

Не вказано

Cirkо

Не вказано

Не вказано!

Не вказано!

Не вказано

Не вказано

Не вказано