будинок продається , Gyál

Головна сторінка » будинок продається , Gyál » будинок продається , Gyál

95 900 000 Ft

€261 993
Дані особи, яка дає оголошення

Fodor Zsolt

Написати повідомлення
Повідомлення має містити не менше 10 символів.
Описання

Перекладений текст

Оригінальний текст
Új építésű földszintes családi házak eladók Gyál egyik legcsendesebb utcájában – várható átadás 2026-ban!
Gyál csendes, kertvárosi részén kínálunk megvételre két különálló, modern stílusú, Amerikai-konyhás nappali + 2 hálószobás földszintes családi házat, saját kerttel és fedett gépkocsibeállóval. Tökéletes választás lehet családoknak, pároknak, de akár befektetésnek is.

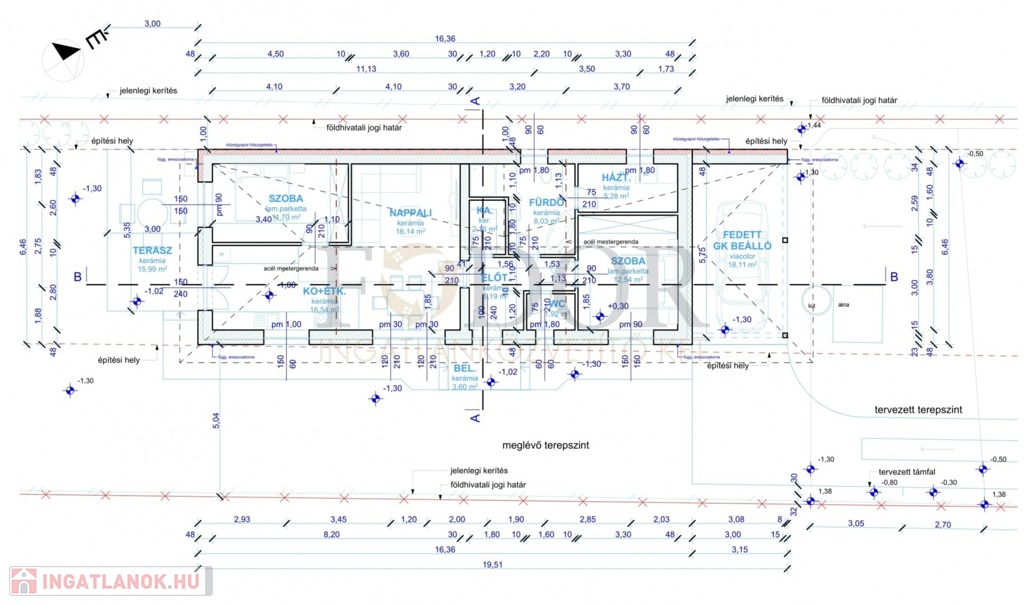
1. Utca felőli épület jellemzői:
• Összterület: 126,18 m²
• Nettó hasznos lakótér: 80,41m²
• Tartozik hozzá fedett gépkocsibeálló 19,39 m² és terasz 16,36m²
• Telekterület 384,81 m2

Exrták:
3 rétegű, hőszigetelt nyílászárók redőnyökkel és
szúnyoghálókkal
1 db invertres hűtő-fűtő klíma a nappaliban
riasztó és elektromos kapu előkészítés

A házak egy 1119 m²-es osztott telken épülnek, mindegyik ingatlanhoz saját, telekrész tartozik. A 3. Telek hátsó felében egy önálló új melléképület is kivitelezésre kerül. Ezt saját részre építi a kivitelező!

Az ingatlanok teljesen különállóak, nem ikerházaz – tehát nincs közös fal, így a csend és a privát szféra garantált!
Az építkezés folyamatban van, a befejezés várható ideje 2026 II. negyedév. Az építkezés bizonyos szakaszáig lehetőség van burkolatok, szaniterek, beltéri ajtók egyedi kiválasztására – így új otthona valóban az Ön igényeihez igazodhat.

Főbb műszaki jellemzők:
• 30 cm-es Porotherm tégla főfalazat
• 15 cm homlokzati hőszigetelés
• 30 cm födémszigetelés
• Korszerű, energiatakarékos kivitelezés

A környék nyugodt, családi házas övezet, mégis minden fontos szolgáltatás könnyen elérhető. Kiváló választás mindazoknak, akik modern, földszintes otthonra vágynak saját kerttel és valódi nyugalommal. Érdeklődjön még ma, és kísérje végig új otthona születését – a tervezéstől a kulcsátadásig!
Irodánk díjmentes hitelügyintézéssel, CSOK Plusz tanácsadással és banki partneri háttérrel segíti Önt a vásárlás minden lépésében!

дані будинок

81 Квадратні метри

384 Квадратні метри

Відмінний

Приватний будинок

Цегла

Не вказано

Не вказано

Повний комфорт

Новобудова

Не вказано

Не вказано

Не вказано