будинок продається , Gyál

Головна сторінка » будинок продається , Gyál » будинок продається , Gyál

134 900 000 Ft

€371 605
Дані особи, яка дає оголошення

Meszesánné Márki Ildikó

Написати повідомлення
Повідомлення має містити не менше 10 символів.
Описання

Перекладений текст

Оригінальний текст
Eladó azonnal költözhető két generációs családi ház Gyálon – Kényelem és Prémium Minőség !

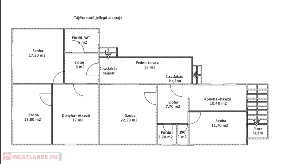
Szeretne egy igényesen felújított, alacsony fenntartású családi házban élni a városközpontban, mégis nyugodt, csendes környezetben? Akkor ne keressen tovább! Eladásra kínálunk egy 110 m²-es, földszintes, részben alápincézett teljesen felújított állapotú családi házat Gyálon 389 m2-es leválasztott telken, amely két generáció igényeinek is megfelelően kialakított.

Főbb jellemzők
- Lakótér:110 m²
- Külső lejáratú pince: 22,50 m2
- Fedett terasz : 18 m2
- Telekméret: 389 m²
- Szobák száma:4 tágas szoba
- Két gépesített konyha
- Fürdőszobák száma: 2 modern fürdőszoba és egy külön WC.
A fedett teraszon át két külön bejáratról nyílik, a lakások külön mérőórákkal rendelkeznek. Ez által mindkét lakás külön igénybe veheti a kedvezményes fogyasztású rezsit. Igény esetén össze is nyitható a két lakás.

Az ingatlan beton alapon, 38-as tégla falazattal épült, betonfödémes, cserép héjalással.

Felújítások: teljeskörű korszerűsítés és felújítás történt kívül-belül.
Új nyílászárók, prémium anyagokból készült belső tér, külső 15 cm-es dryvit hőszigetelés, új víz, villamoshálózat.
- Modern kiegészítők: Redőnyök, szúnyoghálóval ellátott ablakok, klíma, riasztó kiépítve, háromfázisú áram.
- Mindkét lakás külön 24 kW-os kondenzációs kazánról üzemel, ez biztosítja a fűtést és melegvizet.
Az egész éves kellemes hőérzetet( hűtő-fűtő ) split klímák segítik.
- Optikai internetkábel biztosítja a gyors és stabil internetkapcsolatot.
- Modern gépesített konyha mindkét lakásban
- Kényelmi szolgáltatások:Tágas terasz, kertkapcsolat, udvari gépjárműbeálló lehetőség, pince tárolási lehetőséggel.
- Kert: Gondozott kertrész kertvilágítással, ahol élvezheti a természet közelségét és a nyugalmat.

A ház elhelyezkedése is ideális: csendes, forgalomtól elzárt utcában található, azonban a városközpont könnyen és gyorsan elérhető. A jó közlekedési lehetőségeknek köszönhetően percek alatt a belvárosban lehet.
Az ingatlan ügyvédi használati megosztással rendelkezik, osztatlan közös tulajdon, hitelezhető.

Ne hagyja ki ezt a kivételes lehetőséget, hogy egy ilyen remek adottságokkal rendelkező otthon tulajdonosa lehessen!

További információkért és megtekintésért kérem, vegye fel velünk a kapcsolatot !


Várjuk hívását!
(További képekért és információkért kérem hívjon!)

дані будинок

110 Квадратні метри

389 Квадратні метри

Відремонтований

Приватний будинок

Цегла

Cirkо

Не вказано

Не вказано!

Не вказано!

Не вказано

Не вказано

Не вказано