Перекладений текст
Оригінальний текст
Vip-004751.Gárdonyban, a Velencei-tó partjától mindössze 100 méterre ÚJ ÉPÍTÉSŰ társasház földszintjén 103m2-es, utcafronti üzlethelyiség/irodahelyiség 24,3m2-es terasszal kiadó!
Az ingatlan kiváló elhelyezkedésű: mindössze 100 méterre található a Velencei-tó partjától, valamint a vasúti megálló is pár perc sétatávolságra elérhető.
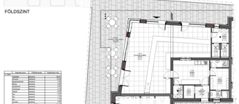
Beltéri elosztás:
Eladótér (nettó)65,87 m²
Fogyasztótér(nettó)24,27 m²
Konyha(nettó)13,35 m²
Takarítószertár(nettó)1,92 m²
Tároló(nettó)2,08 m²
Árúátvevő(nettó)2,80 m²
Zuhanyzó(nettó)2,18 m²
Öltöző(nettó)6,09 m²
WC(nettó)2,07 m²
WC(nettó)1,70 m²
WC(nettó)1,70 m²
Mosdó(nettó)3,84 m²
Összesen103,6 m²
+ Kültér
Erkély / Terasz (nettó)24,27 m²
Tájolása: É
Minden közmű önállóan mérhető, fogyasztás alapján fizetendő.
A fűtést hőszivattyú biztosítja padlófűtéses hőleadással, klíma előkészítés kialakított.
Ingyenes parkolási lehetőség rendelkezésre áll a társasház környezetében, illetve lehetőség van felszíni parkolóhely megvásárlására a lakópark területén 2,5 M Ft-tól.
A társasház összesen 12 lakásból és 4 üzlethelyiségből áll –
tervezett műszaki átadás: 2026. szeptember.
Főbb műszaki paraméterek:
– padlófűtés
– klíma előkészítés
– egyéni mérőórák
– minőségi anyagok felhasználása
– felsőkategóriás belsőépítészeti kialakítás
– motoros redőnyök
– nyílászárók 3 rétegű üveggel
– választható hideg- és melegburkolat
– CPL fóliás beltéri ajtó választható színben
(Részletes műszaki leírás kérés esetén elérhető)
Bérleti díja: 540.000,- Ft + Áfa/ hó + rezsiköltség, illetve 2 havi kaució
Az ingatlan meg is vásárolható, eladási ára: 130 M Ft +Áfa
Elérhető földszinti, utcafronti irodák/üzlethelyiségek melyek megvásárolhatók, vagy kibérelhetők:
1. számú helyiség: 43m2 Eladási ára: 51.000.000.- forint / Bérleti díja: 250.000,- Ft + Áfa/ hó + rezsiköltség, illetve 2 havi kaució
2. számú helyiség: 127,9m2 Eladási ára: 130.000.000.- forint / Bérleti díja: 540.000,-Ft + Áfa/ hó + rezsiköltség, illetve 2 havi kaució
3. számú helyiség: 38m2 Eladási ára: 44.500.000.- forint / Bérleti díja: 220.000,-Ft + Áfa/ hó + rezsiköltség, illetve 2 havi kaució
4. számú helyiség: 36m2 Eladási ára: 45.000.000.- forint / Bérleti díja: 250.000,-Ft + Áfa/ hó + rezsiköltség, illetve 2 havi kaució
Ha felkeltette érdeklődését, hívja irodánkat bizalommal, éljen ingyenes, személyre szabott hitelügyintézés szolgáltatásunkkal. Segítünk továbbá adásvételhez szükséges ügyvédi közreműködésben, energetikai tanúsítvány, valamint értékbecslés elkészítésében.
For English details please send us a message or an e-mail, thank you.
Не вказано
Офисное помещение
104 Квадратні метри
Не вказано
Не вказано
Шукайте легко в нашій базі даних будинок, квартиру, офіс, гараж, земельну ділянку або будь-яку іншу нерухомість!
Kvartyra.hu член Real Estate Group.
Продається нерухомість в Угорщині - Kvartyra.hu © 2026 Всі права захищені