будинок продається , Enese

Головна сторінка » будинок продається , Enese » будинок продається , Enese

83 900 000 Ft

€220 412
Дані особи, яка дає оголошення

Neizer Éva

Написати повідомлення
Повідомлення має містити не менше 10 символів.
Описання

Перекладений текст

Оригінальний текст

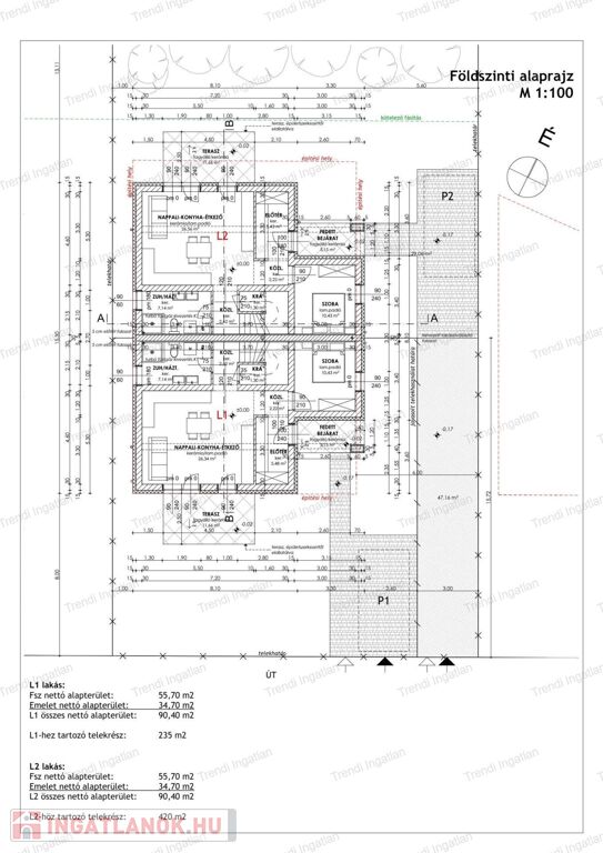
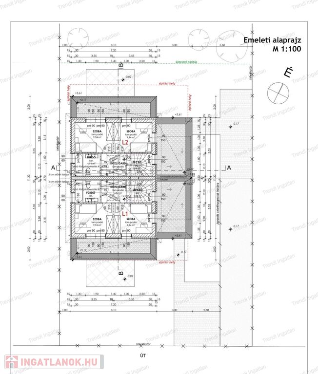
Kulcsrakész ház eladó Kulcsrakész ház eladó! KÖLTÖZHETŐ!

Enesén új építésű nappali + 3 szobás, 90,40 nm-es, kétszintes ikerház 235 nm-es telekrésszel kulcsrakész állapotban eladó.

Minőségi kivitelezés és kiváló belső elrendezés jellemző a házra. A földszinten amerikai konyhás nappali, szoba, zuhanyzóval és WC-vel felszerelt háztartási helyiség, közlekedő, előtér található. A nappaliból elérhető 11,66 nm-es terasz. Az emeleten 2 szoba, káddal és WC-vel felszerelt fürdőszoba, gardrób, közlekedő került kialakításra. A szobák laminált parkettával, a többi helyiség járólappal burkolt. Az ár tartalmazza a konyhabútort minőségi beépített gépekkel (sütő, főzőlap, hűtő, mikrohullámú sütő, mosogatótálca csapteleppel), a TV szekrényt, a függönyöket, a lámpákat és a nappaliban valamint az emeleten található szobákban a klímát.

A ház 30-as falazóelemből, 15 cm-es homlokzati szigeteléssel, 3 rétegű műanyag nyílászárókkal került kivitelezésre. Fűtésről kondenzációs kazán gondoskodik padlófűtéssel.

Az ingatlan kulcsrakész ára: 83.900.000 Ft.

Az ár tartalmazza a telek árát.

Kulcsrakész átadás várható ideje: 2025 november vége

Bővebb információkért forduljon hozzám bizalommal.

Hétköznap és hétvégén is várom hívását!

Díjmentes, bankfüggetlen hitelügyintézéssel állunk rendelkezésére.

A hirdetésben feltüntetett képek illusztrációk.

дані будинок

90 Квадратні метри

235 Квадратні метри

Відмінний

Будинок-близнюк

Цегла

Не вказано

Не вказано

Не вказано!

Новобудова

Не вказано

Не вказано

Не вказано

Фотографії