будинок продається , Dabas

Головна сторінка » будинок продається , Dabas » будинок продається , Dabas

65 000 000 Ft

€170 313
Дані особи, яка дає оголошення

Szládikné Kitti

Написати повідомлення
Повідомлення має містити не менше 10 символів.
Описання

Перекладений текст

Оригінальний текст
Megbízható, tapasztalt kivitelező Dabas és vonzáskörzetében vállalja az ehhez hasonló modern családi ház teljes körű megépítését – az alapoktól egészen a kulcsrakész átadásig. 

Épít saját telekre,
A telek kiválasztásában és ügyintézésében is segítünk, ha még nincs meg az ideális helyszín.
Egyedi vagy típusház megoldások
Modern, energiatakarékos műszaki tartalom
Gyors, határidőre történő kivitelezés
 Megbízható csapat, valós referenciákkal

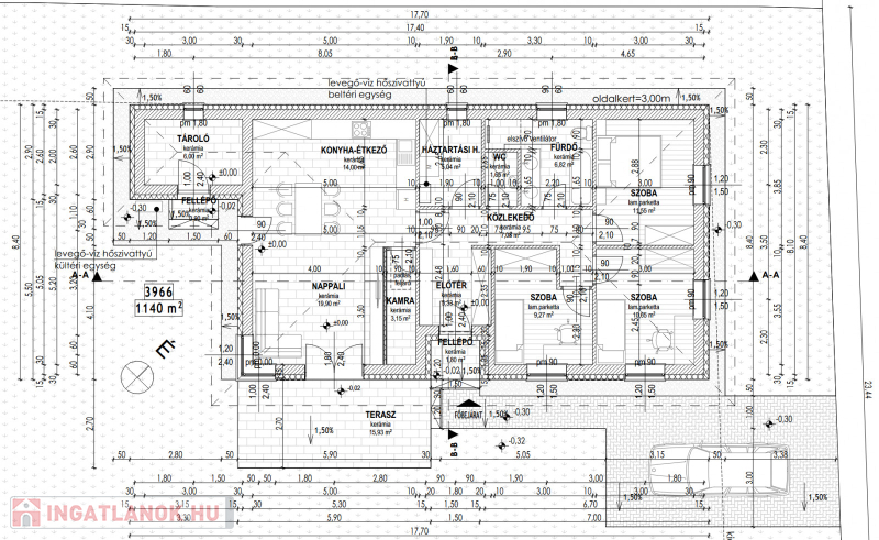
100 nm-es 3 szoba + amerikai konyhás nappali, fürdőszoba, háztartási helyiség.Főbb műszaki jellemzők:

18 nm-es terasz
30-as tégla falazat, 15 cm hőszigetelés
Modern, rejtett tokos redőnyök + szúnyogháló
H-tarifás hőszivattyú gondoskodik a padlófűtésről és melegvízről
2 db klímaberendezés biztosítja a hűtést és a kiegészítő fűtést
Burkolatok 10 000 Ft/nm értékig szabadon választhatók

100 nm-es háznál az ár: 650.000.-/nm
80 nm-es háznál az ár: 750.000.-/nm 
Referencia ház megtekintehtő Dabason. 
Amennyiben hirdetésem felkeltette érdeklődését, keressen az alábbi elérhetőségek egyikén.

дані будинок

100 Квадратні метри

1 100 Квадратні метри

Відмінний

Приватний будинок

Не вказано

Не вказано

Не вказано

Повний комфорт

Не вказано!

Не вказано

Не вказано

Не вказано

Фотографії