квартира продається , Budaörs

Головна сторінка » квартира продається , Budaörs » квартира продається , Budaörs

192 000 000 Ft

€506 489
Дані особи, яка дає оголошення

Csóka Annamária

Написати повідомлення
Повідомлення має містити не менше 10 символів.
Описання

Перекладений текст

Оригінальний текст
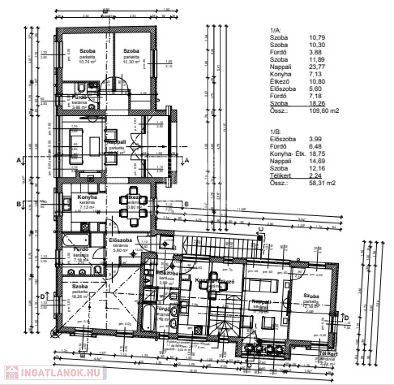
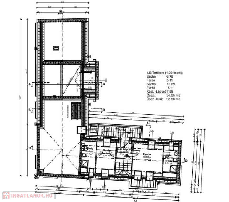
Eladó belső kétszintes lakás Budaörsön!

Várható befejezés: 2023.12.

- Amerikai konyhás nappali + 3 szoba és 2 félszoba ( 160 m2)

- Dupla komfort + külön WC

- Terasz (7 m2)

- Klíma ( hűtő-fűtő)

- Padlófűtés

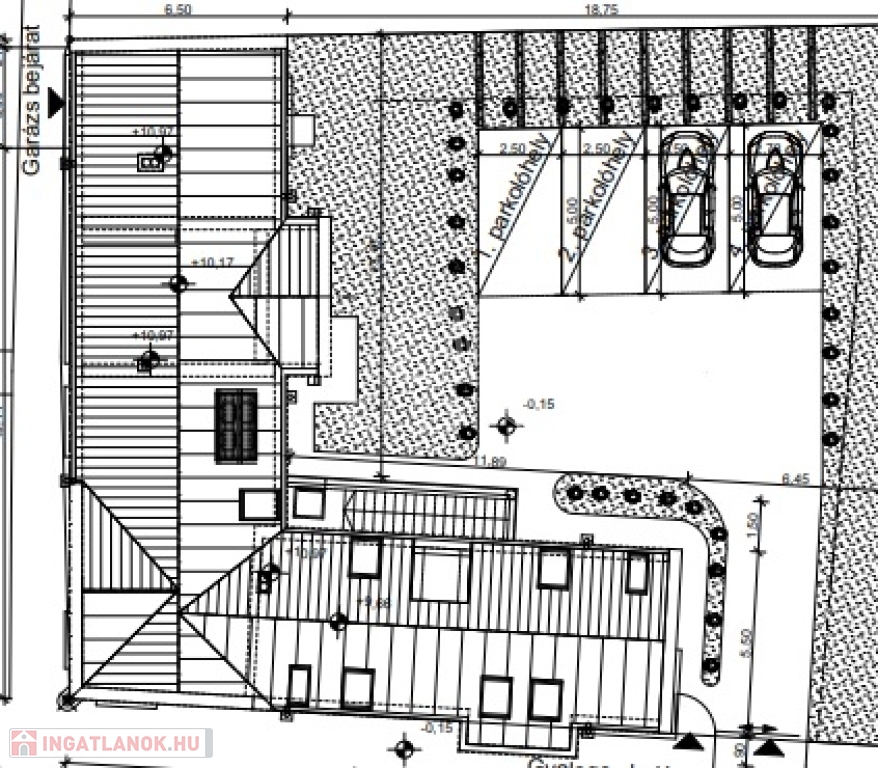
- Felszíni autóbeálló

- Korszerű műanyag nyílászárók

- Szigetelés

- Kertkapcsolat

Jelen készültségi szint lehetővé teszi az új tulajdonosok elképzeléseinek megvalósítását.


Parkolás: felszíni beálló

Közelben: TESCO, MEDIA MARKT, AUCHAN, IKEA, MÖMAX, XXXLUTZ, DIEGO, SALUS GYÓGYPONT, BUDAÖRSI HALPIAC....
Egyéb bevásárlási lehetőségek, óvoda, iskola, bankok, posta, gyógyszertár stb.


Közlekedés: kiváló ( Buszok: 40E, 172, 173, 288, 731, 732, 734, 735, 736, 760, 762, Éjszakai: 940)
Az M1 és M7 autópálya pár perc távolságra található.
Kelenföld vasútállomás autóbusszal 2 megálló.


A hirdetésben feltüntetett adatok és információk csak tájékoztató jellegűek, jogi kötelezettséggel nem bíró jognyilatkozatnak minősülnek, mely nem tekinthető ajánlat tételnek és nem járnak az eladóra nézve kötelező ajánlati kötöttséggel.


Ügyfeleink részére BANKFÜGGETLEN hitelügyintéző kollegáink szívesen nyújtanak segítséget, hitellel vagy akár CSOK-kal kapcsolatban is!

Amennyiben felkeltettem az érdeklődését vagy bármely további kérdése lenne, keressen bizalommal.

Akár hétvégén is!

CSA

дані квартира

2 поверх

Цегла

Cirkо

Відмінний

Подвійний комфорт

Новобудова

160 Квадратні метри

Не вказано

Власний

Не вказано

з двору

Мапа
Фотографії