будинок продається , Boncodfölde

Головна сторінка » будинок продається , Boncodfölde » будинок продається , Boncodfölde

120 000 000 Ft

€329 553
Дані особи, яка дає оголошення

Kovács Rita

Написати повідомлення
Повідомлення має містити не менше 10 символів.
Описання

Перекладений текст

Оригінальний текст
Boncodfölde nyugodt, zöld környezetében kínálunk megvételre egy prémium kivitelezésű, átgondolt tervezésű családi házat, amely kiválóan alkalmas akár két generáció együttélésére is.

Az ingatlan különlegessége a praktikus kialakítás: az alsó és a felsőszint önálló bejárattal is rendelkezik, ugyanakkor belső kapcsolattal egy egységes otthonként is használható.

A ház egy 1000 m²-es telken épül, átadása 2026 év végén várható. Masszív, 30 cm-es tégla falazattal és 15 cm-es szigeteléssel készül.

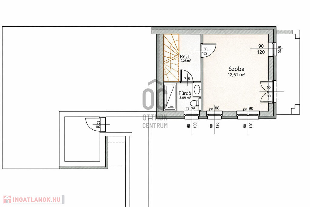
Helyiségek:

- alsó szint: közlekedő, szoba, fürdőszoba
- földszint: 3 szoba, nappali-konyha-étkező, fürdőszoba, külön WC, háztartási helyiség, előszoba, tároló, közlekedő

Kiemelt extrák:

- 3 fedett terasz
- 2 fürdőszoba
- aknás garázs

Műszaki tartalom:

- hőszivattyús fűtés
- fa nyílászárók
- dekoratív, látszó fa gerendás mennyezet
- világos, nagy üvegfelületek

Választható burkolatok:

- hidegburkolat: 10.000 Ft/m²-ig
- melegburkolat: 8.000 Ft/m²-ig

Csendes, természetközeli elhelyezkedés, Zalaegerszeg gyors elérhetőségével.

Ideális választás azoknak, akik egy modern, rugalmasan alakítható otthont keresnek hosszú távra.
További információért keressen bizalommal!

дані будинок

135 Квадратні метри

1 000 Квадратні метри

Будується

Приватний будинок

Цегла

Електричне

Не вказано

Не вказано!

Новобудова

Не вказано

Одноповерховий

Не вказано

Мапа
Фотографії